Maison neuve à
Thoiry
(78770) Référence :
TD2332261_2
Prix du projet : Maison avec Terrain
prix 598 250 €
- 7 pièces
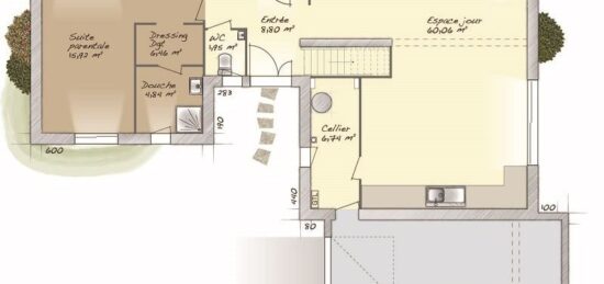
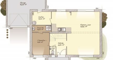
- 4 chambres
- Surface maison 160 m2
Thoiry : maison F7 (160 m²) en vente
IDÉALEMENT SITUÉE - MAISON 7 PIÈCES NEUVE
À vendre : proche du Transilien N (gare de Beynes, 50 min de Paris), votre agence Maisons Balency Coignières est heureuse de vous proposer, idéalement située dans Thoiry (78770), cette maison de 7 pièces de 160 m² et de 1 740 m² de terrain. Son intérieur se divise en quatre chambres, une cuisine et deux salles de bains.
C'est une maison de 2 niveaux. Elle est neuve.
Cette maison est située dans un secteur recherché. Des écoles maternelles et élémentaires y sont implantées. Il y a un tennis, une bibliothèque, un commerce, une boulangerie, un supermarché, une boucherie-charcuterie et un bureau de poste à quelques minutes.
Elle est à vendre pour la somme de 598 250 €.
Contactez Thibault DUTEURTRE (06-23-41-73-81) pour obtenir de plus amples informations sur la propriété.
Annonce proposée par un Agent Commercial Partenaire.
Mentions légales
Terrain proposé par un partenaire foncier selon disponibilités et autorisation de publicité au prix de 220 000 €. Hors droit d'enregistrement et frais de notaire. Maison proposée, avec un contrat de construction de maison individuelle, dans le cadre de la loi du 19/12/1990, au prix de 378 250 € (Hors branchements et raccordements, papiers peints, peintures, revêtement de sol dans les chambres, qui sont chiffrés dans les travaux qui restent à charge du client. Tarif modifiable sans préavis). Étiquette énergie : A. Différents modèles disponibles pour ce terrain. Assurances et garanties du constructeur comprises (RC professionnelle, décennale, dommage ouvrage).Agence Maisons Balency de Coignières (78310)
- Téléphone :
- 01 34 61 42 59
- Adressse :
- Domexpo Ouest
78310 Coignières, France
