Maison neuve à
Thoiry
(78770) Référence :
TD2332261_3
Prix du projet : Maison avec Terrain
prix 633 250 €
- 9 pièces
- 4 chambres
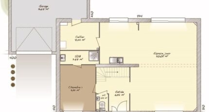
- Surface maison 186 m2
Maison de 9 pièces (186 m²) en vente à Thoiry
IDÉALEMENT SITUÉE - MAISON 9 PIÈCES NEUVE
À vendre : à côté du Transilien N (gare de Beynes, 50 min de Paris), venez découvrir cette maison de 9 pièces de 186 m² idéalement située dans Thoiry (78770).
C'est une maison de 2 niveaux. Elle inclut quatre chambres, une cuisine et deux salles de bains. La maison est neuve.
Le terrain de la propriété est de 1 740 m².
Cette maison se trouve dans un quartier convoité. On y trouve des écoles maternelles et élémentaires. On trouve un tennis, une bibliothèque, un commerce, une boulangerie, un supermarché, une boucherie-charcuterie et un bureau de poste à quelques minutes.
Elle est à vendre pour la somme de 633 250 €.
Contactez notre agence (DUTEURTRE Thibault : 06-23-41-73-81) pour plus d'informations sur la maison.
Annonce proposée par un Agent Commercial Partenaire.
Mentions légales
Terrain proposé par un partenaire foncier selon disponibilités et autorisation de publicité au prix de 220 000 €. Hors droit d'enregistrement et frais de notaire. Maison proposée, avec un contrat de construction de maison individuelle, dans le cadre de la loi du 19/12/1990, au prix de 413 250 € (Hors branchements et raccordements, papiers peints, peintures, revêtement de sol dans les chambres, qui sont chiffrés dans les travaux qui restent à charge du client. Tarif modifiable sans préavis). Étiquette énergie : A. Différents modèles disponibles pour ce terrain. Assurances et garanties du constructeur comprises (RC professionnelle, décennale, dommage ouvrage).Agence Maisons Balency de Coignières (78310)
- Téléphone :
- 01 34 61 42 59
- Adressse :
- Domexpo Ouest
78310 Coignières, France
