Maison neuve à
Thoiry
(78770) Référence :
TD2443696_1
Prix du projet : Maison avec Terrain
prix 592 375 €
- 7 pièces
- 5 chambres
- Surface maison 170 m2
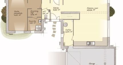
VENTE : maison T7 (170 m²) à Thoiry
IDÉALEMENT SITUÉE - MAISON 7 PIÈCES NEUVE
À deux pas de la gare de Beynes (Paris à 50 min avec le Transilien N), en vente idéalement située dans Thoiry (78770), nous sommes heureux de vous présenter cette maison de 7 pièces de 170 m² avec vue sur jardin.
Il s'agit d'une maison de plain-pied. Elle inclut cinq chambres, une cuisine et trois salles de bains. Cette maison est neuve.
Le terrain du bien s'étend sur 1 205 m².
Cette propriété se situe dans un quartier recherché. Des établissements scolaires maternelles et élémentaires y sont implantés. Côté transports en commun, on trouve huit gares à moins de 10 minutes en voiture. Il y a un tennis, une bibliothèque, un commerce, une boulangerie, un supermarché, une boucherie-charcuterie et un bureau de poste dans les environs.
Elle est à vendre pour la somme de 592 375 €.
Prenez contact avec notre agence (DUTEURTRE Thibault : 06-23-41-73-81) pour obtenir de plus amples renseignements sur la maison, sur les modalités de vente ou sur les démarches à suivre. Concrétisez vos projets immobiliers avec Maisons Balency Coignières.
Annonce proposée par un Agent Commercial Partenaire.
Mentions légales
Terrain proposé par un partenaire foncier selon disponibilités et autorisation de publicité au prix de 210 000 €. Hors droit d'enregistrement et frais de notaire. Terrain + Maison proposés au prix de 592 375 € (Hors branchements et raccordements, papiers peints, peintures, revêtement de sol dans les chambres. Tarif modifiable sans préavis). Etiquette énergie : A. Différents modèles disponibles pour ce terrain. Assurances et garanties du constructeur (RC professionnelle, décennale, dommage ouvrage, garantie de remboursement de l'acompte, livraison à prix et délai convenu) : https://www.maisons-balency.fr/informations-legales/. HEXAOM Services est enregistré auprès de l'ORIAS en tant que Courtier en financement, Niveau 1, sous le numéro 14001345.Agence Maisons Balency de Coignières (78310)
- Téléphone :
- 01 34 61 42 59
- Adressse :
- Domexpo Ouest
78310 Coignières, France
