Maison neuve à
Thoiry
(78770) Référence :
TD2443701_2
Prix du projet : Maison avec Terrain
prix 598 250 €
- 7 pièces
- 4 chambres
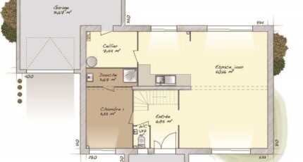
- Surface maison 160 m2
VENTE : maison de 7 pièces (160 m²) à Thoiry
IDÉALEMENT SITUÉE - MAISON 7 PIÈCES NEUVE
À quelques minutes du Transilien N (gare de Beynes, 50 min de Paris), nous vous présentons en vente, idéalement située dans Thoiry (78770), cette maison de 7 pièces de 160 m².
Cette maison compte 2 niveaux. Son intérieur dispose de quatre chambres, d'une cuisine et de deux salles de bains. La maison est neuve.
Le terrain du bien est de 1 740 m².
La maison est située dans un secteur prisé. Des écoles primaires y sont implantées. Côté transports en commun, il y a huit gares à moins de 10 minutes en voiture. On trouve un tennis, une bibliothèque, un commerce, une boulangerie, un supermarché, un bureau de poste et une boucherie-charcuterie à proximité.
Son prix de vente est de 598 250 €.
Contactez Thibault DUTEURTRE (tél : 06-23-41-73-81) pour obtenir de plus amples informations sur la propriété. Maisons Balency Coignières est là pour vous accompagner dans toutes vos démarches.
Annonce proposée par un Agent Commercial Partenaire.
Mentions légales
Terrain proposé par un partenaire foncier selon disponibilités et autorisation de publicité au prix de 220 000 €. Hors droit d'enregistrement et frais de notaire. Terrain + Maison proposés au prix de 598 250 € (Hors branchements et raccordements, papiers peints, peintures, revêtement de sol dans les chambres. Tarif modifiable sans préavis). Etiquette énergie : A. Différents modèles disponibles pour ce terrain. Assurances et garanties du constructeur (RC professionnelle, décennale, dommage ouvrage, garantie de remboursement de l'acompte, livraison à prix et délai convenu) : https://www.maisons-balency.fr/informations-legales/. HEXAOM Services est enregistré auprès de l'ORIAS en tant que Courtier en financement, Niveau 1, sous le numéro 14001345.Agence Maisons Balency de Coignières (78310)
- Téléphone :
- 01 34 61 42 59
- Adressse :
- Domexpo Ouest
78310 Coignières, France
