Maison neuve à
Thoiry
(78770) Référence :
TD2443701_3
Prix du projet : Maison avec Terrain
prix 633 250 €
- 9 pièces
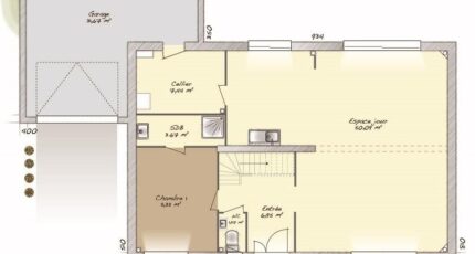
- 4 chambres
- Surface maison 186 m2
Thoiry : maison F9 (186 m²) à vendre
IDÉALEMENT SITUÉE - MAISON 9 PIÈCES NEUVE
À vendre : à proximité du Transilien N (gare de Beynes, 50 min de Paris), nous vous présentons cette maison de 9 pièces de 186 m² et de 1 740 m² de terrain idéalement située dans Thoiry (78770).
Cette maison possède 2 niveaux. Elle se divise en quatre chambres, une cuisine et deux salles de bains. La maison est neuve.
La maison se trouve dans un secteur convoité. On y trouve des établissements scolaires maternelles et élémentaires. Niveau transports, il y a huit gares à moins de 10 minutes en voiture. On trouve un tennis, une bibliothèque, un commerce, une boulangerie, un supermarché, un bureau de poste et une boucherie-charcuterie à quelques minutes du bien.
Elle est proposée à l'achat pour 633 250 €.
Prenez contact avec Thibault DUTEURTRE (tél : 06-23-41-73-81) pour plus de renseignements sur la maison ou sur les modalités de vente. Maisons Balency Coignières vous accompagne dans tous vos projets immobiliers et à toutes les étapes de votre projet.
Annonce proposée par un Agent Commercial Partenaire.
Mentions légales
Terrain proposé par un partenaire foncier selon disponibilités et autorisation de publicité au prix de 220 000 €. Hors droit d'enregistrement et frais de notaire. Terrain + Maison proposés au prix de 633 250 € (Hors branchements et raccordements, papiers peints, peintures, revêtement de sol dans les chambres. Tarif modifiable sans préavis). Etiquette énergie : A. Différents modèles disponibles pour ce terrain. Assurances et garanties du constructeur (RC professionnelle, décennale, dommage ouvrage, garantie de remboursement de l'acompte, livraison à prix et délai convenu) : https://www.maisons-balency.fr/informations-legales/. HEXAOM Services est enregistré auprès de l'ORIAS en tant que Courtier en financement, Niveau 1, sous le numéro 14001345.Agence Maisons Balency de Coignières (78310)
- Téléphone :
- 01 34 61 42 59
- Adressse :
- Domexpo Ouest
78310 Coignières, France
