Maison neuve à
Thuit-Hébert (27520) Référence : KXA2408282_3

Prix du projet : Maison avec Terrain

prix 305 000 €

  • 5 pièces
  • 3 chambres
  • Surface maison 120 m2

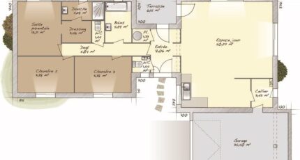
VENTE : maison T5 (120 m²) à Thuit-Hébert
MAISON 5 PIÈCES NEUVE - PROCHE DE ROUEN
En vente à 42 km de la Manche et à deux pas de Rouen, nous vous présentons cette maison de 5 pièces de plain-pied de 120 m² à Thuit-Hébert (27520).
Son intérieur propose trois chambres, une cuisine et deux salles de bains. Cette maison est neuve.
Le terrain du bien s'étend sur 730 m².
Côté transports, on trouve la gare Bourgtheroulde-Thuit-Hébert à moins de 10 minutes en voiture. Les autoroutes A13 et A28 sont accessibles à moins de 10 km. Il y a un tennis à proximité.
Elle est proposée à l'achat pour 305 000 €.
Contactez Kévin XAVIER ALVES (06-58-91-13-87) pour toute information sur la maison, sur les démarches à suivre et sur les modalités de vente. Maisons Balency Boos est là pour vous accompagner dans tous vos projets immobiliers.

Annonce proposée par un Agent Commercial Partenaire.

Mentions légales

Terrain proposé par un partenaire foncier selon disponibilités et autorisation de publicité au prix de 65 000 €. Hors droit d'enregistrement et frais de notaire. Terrain + Maison proposés au prix de 305 000 € (Hors branchements et raccordements, papiers peints, peintures, revêtement de sol dans les chambres. Tarif modifiable sans préavis). Etiquette énergie : A. Différents modèles disponibles pour ce terrain. Assurances et garanties du constructeur (RC professionnelle, décennale, dommage ouvrage, garantie de remboursement de l'acompte, livraison à prix et délai convenu) : https://www.maisons-balency.fr/informations-legales/. HEXAOM Services est enregistré auprès de l'ORIAS en tant que Courtier en financement, Niveau 1, sous le numéro 14001345.

Contactez l'agence de Boos

02 35 80 66 66

    * Champs obligatoires

    Vos informations sont traitées par HEXAOM et transmises à un conseiller commercial qui vous contactera afin de répondre à votre demande. Les plans et images présentés sur notre site sont la propriété d’HEXAOM et ne peuvent pas être reproduits sans son accord. Pour retrouver notre politique de protection des données personnelles et exercer vos droits conformément à la « loi informatique et liberté » cliquez-ici.