Maison neuve à
Toulouges
(66350) Référence :
MM2348196_1
Prix du projet : Maison avec Terrain
prix 546 000 €
- 5 pièces
- 3 chambres
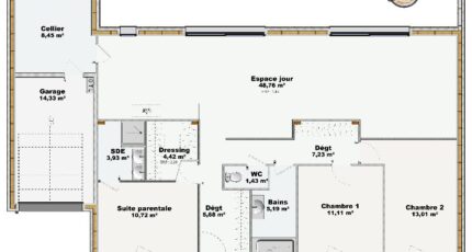
- Surface maison 120 m2
Toulouges : maison de 120 m² en vente
À découvrir à Toulouges (66350) : Maison réalisée en ossature bois en France. Construction responsable alliant performance technique et respect de l'environnement. Sa surface est de 120 m² sur 635 m² de terrain au calme en impasse.
Le prix de vente de cette maison de 5 pièces est de 546 000 €.
N'hésitez pas à prendre contact avec Maryline MARIE (tél : 06-10-47-27-59) pour toute information sur la maison de plain-pied. Maisons Balency Cabestany est là pour vous accompagner dans tous vos projets immobiliers.
Mentions légales
Terrain proposé par un partenaire foncier selon disponibilités et autorisation de publicité au prix de 229 000 €. Hors droit d'enregistrement et frais de notaire. Maison proposée, avec un contrat de construction de maison individuelle, dans le cadre de la loi du 19/12/1990, au prix de 317 000 € (Hors branchements et raccordements, papiers peints, peintures, revêtement de sol dans les chambres, qui sont chiffrés dans les travaux qui restent à charge du client. Tarif modifiable sans préavis). Étiquette énergie : A. Différents modèles disponibles pour ce terrain. Assurances et garanties du constructeur comprises (RC professionnelle, décennale, dommage ouvrage).Agence Maisons Balency de Cabestany (66330)
- Téléphone :
- 04 68 63 14 52
- Adressse :
- 1 chemin de Saint Gaudérique
66330 Cabestany, France
