Maison neuve à
Tourville-la-Rivière (76410) Référence : EL2320364_1

Prix du projet : Maison avec Terrain

prix 185 000 €

  • 4 pièces
  • 2 chambres
  • Surface maison 50 m2

VENTE d'une maison de 4 pièces (50 m²) à Tourville-la-Rivière
IDÉALEMENT SITUÉE - MAISON 4 PIÈCES NEUVE
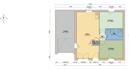
En vente : située à 12 km de Rouen, nous vous proposons cette maison de 4 pièces de plain-pied de 50 m², idéalement située dans Tourville-la-Rivière (76410). Son intérieur est composé de deux chambres, d'une cuisine et d'une salle de bains.
Le terrain de la maison est de 630 m².
La maison est neuve.
Ce bien se situe dans un secteur attractif. L'École Primaire les Cygnes se trouve à moins de 10 minutes à pied. Côté transports, il y a cinq gares à moins de 10 minutes en voiture. Les autoroutes A13 et A139 et les nationales N138 et N338 sont accessibles à moins de 10 km. On trouve une bibliothèque et un commerce à quelques minutes du bien.
Il est proposé à l'achat pour 185 000 €.
Contactez Aurélien LEOVANT (02-35-80-66-66) pour plus d'informations sur la maison.

Annonce proposée par un Agent Commercial Partenaire.

Mentions légales

Terrain proposé par un partenaire foncier selon disponibilités et autorisation de publicité au prix de 80 000 €. Hors droit d'enregistrement et frais de notaire. Terrain + Maison proposés au prix de 185 000 € (Hors branchements et raccordements, papiers peints, peintures, revêtement de sol dans les chambres. Tarif modifiable sans préavis). Etiquette énergie : A. Différents modèles disponibles pour ce terrain. Assurances et garanties du constructeur (RC professionnelle, décennale, dommage ouvrage, garantie de remboursement de l'acompte, livraison à prix et délai convenu) : https://www.maisons-balency.fr/informations-legales/. HEXAOM Services est enregistré auprès de l'ORIAS en tant que Courtier en financement, Niveau 1, sous le numéro 14001345.

Contactez l'agence de Boos

02 35 80 66 66

    * Champs obligatoires

    Vos informations sont traitées par HEXAOM et transmises à un conseiller commercial qui vous contactera afin de répondre à votre demande. Les plans et images présentés sur notre site sont la propriété d’HEXAOM et ne peuvent pas être reproduits sans son accord. Pour retrouver notre politique de protection des données personnelles et exercer vos droits conformément à la « loi informatique et liberté » cliquez-ici.