Maison neuve à
Tourville-la-Rivière (76410) Référence : MJ2334892_1

Prix du projet : Maison avec Terrain

prix 319 900 €

  • 6 pièces
  • 5 chambres
  • Surface maison 114 m2

Pîtres : maison T6 (114 m²) en vente
QUARTIER RECHERCHÉ - MAISON 6 PIÈCES NEUVE
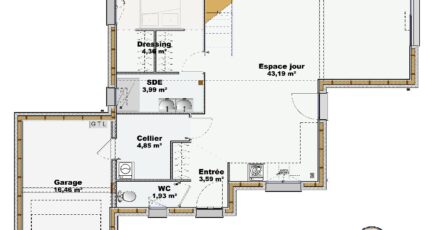
À deux pas de Rouen, en vente dans un quartier convoité de Pîtres (27590), nous vous présentons cette maison de 6 pièces de 114 m² et de 510 m² de terrain. Son intérieur est composé de cinq chambres, d'une cuisine et de deux salles de bains.
C'est une maison de 2 niveaux. Elle est neuve.
La maison se trouve dans un secteur attractif. On y trouve l'École Primaire Jacques Prévert. Niveau transports en commun, il y a cinq gares à moins de 10 minutes en voiture. Les autoroutes A13 et A154 sont accessibles à moins de 10 km. On trouve une bibliothèque à proximité du logement.
Elle est proposée à l'achat pour 319 900 €.
Contactez notre agence (Michael JOURDON : 06.43.05.84.44) pour toute question sur la propriété. Donnez vie à vos projets immobiliers avec Maisons Balency Boos.

Annonce proposée par un Agent Commercial Partenaire.

Mentions légales

Terrain proposé par un partenaire foncier selon disponibilités et autorisation de publicité au prix de 69 500 €. Hors droit d'enregistrement et frais de notaire. Terrain + Maison proposés au prix de 250 400 € (Hors branchements et raccordements, papiers peints, peintures, revêtement de sol dans les chambres. Tarif modifiable sans préavis). Etiquette énergie : A. Différents modèles disponibles pour ce terrain. Assurances et garanties du constructeur (RC professionnelle, décennale, dommage ouvrage, garantie de remboursement de l'acompte, livraison à prix et délai convenu) : https://www.maisons-balency.fr/informations-legales/. HEXAOM Services est enregistré auprès de l'ORIAS en tant que Courtier en financement, Niveau 1, sous le numéro 14001345.

Contactez l'agence de Boos

02 35 80 66 66

    * Champs obligatoires

    Vos informations sont traitées par HEXAOM et transmises à un conseiller commercial qui vous contactera afin de répondre à votre demande. Les plans et images présentés sur notre site sont la propriété d’HEXAOM et ne peuvent pas être reproduits sans son accord. Pour retrouver notre politique de protection des données personnelles et exercer vos droits conformément à la « loi informatique et liberté » cliquez-ici.