Maison neuve à
Tourville-la-Rivière (76410) Référence : MJ2334892_2

Prix du projet : Maison avec Terrain

prix 327 500 €

  • 9 pièces
  • 4 chambres
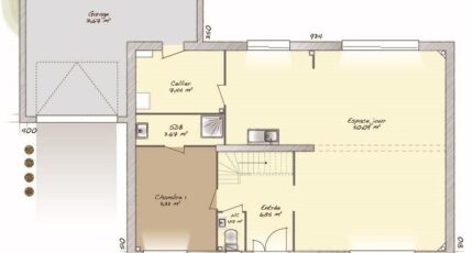
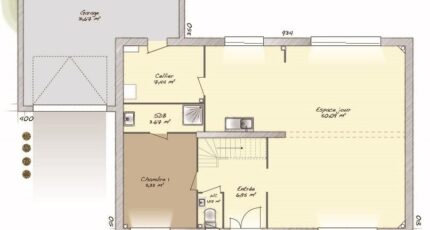
  • Surface maison 186 m2

VENTE d'une maison F9 (186 m²) à Pîtres
QUARTIER RECHERCHÉ - MAISON 9 PIÈCES NEUVE
En vente à deux pas de Rouen, dans un secteur convoité de Pîtres (27590), nous sommes ravis de vous proposer cette maison de 9 pièces de 186 m².
Cette maison compte 2 niveaux. Elle est composée de quatre chambres, d'une cuisine et de deux salles de bains. Cette maison est neuve.
Le terrain du bien est de 510 m².
La maison est située dans un quartier prisé. L'École Primaire Jacques Prévert y est implantée. Niveau transports en commun, on trouve cinq gares à moins de 10 minutes en voiture. Les autoroutes A13 et A154 sont accessibles à moins de 10 km. Il y a une bibliothèque à quelques minutes.
Elle est à vendre pour la somme de 327 500 €.
Prenez contact avec notre agence (JOURDON Michael : 06.43.05.84.44) pour plus d'informations sur la maison ou sur les modalités de vente. Donnez vie à vos projets immobiliers avec Maisons Balency Boos.

Annonce proposée par un Agent Commercial Partenaire.

Mentions légales

Terrain proposé par un partenaire foncier selon disponibilités et autorisation de publicité au prix de 69 500 €. Hors droit d'enregistrement et frais de notaire. Terrain + Maison proposés au prix de 258 000 € (Hors branchements et raccordements, papiers peints, peintures, revêtement de sol dans les chambres. Tarif modifiable sans préavis). Etiquette énergie : A. Différents modèles disponibles pour ce terrain. Assurances et garanties du constructeur (RC professionnelle, décennale, dommage ouvrage, garantie de remboursement de l'acompte, livraison à prix et délai convenu) : https://www.maisons-balency.fr/informations-legales/. HEXAOM Services est enregistré auprès de l'ORIAS en tant que Courtier en financement, Niveau 1, sous le numéro 14001345.

Contactez l'agence de Boos

02 35 80 66 66

    * Champs obligatoires

    Vos informations sont traitées par HEXAOM et transmises à un conseiller commercial qui vous contactera afin de répondre à votre demande. Les plans et images présentés sur notre site sont la propriété d’HEXAOM et ne peuvent pas être reproduits sans son accord. Pour retrouver notre politique de protection des données personnelles et exercer vos droits conformément à la « loi informatique et liberté » cliquez-ici.