Maison neuve à
Tourville-la-Rivière (76410) Référence : KXA2335712_2

Prix du projet : Maison avec Terrain

prix 389 000 €

  • 7 pièces
  • 5 chambres
  • Surface maison 170 m2

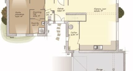
VENTE : maison T7 (170 m²) à Tourville-la-Rivière
MAISON 7 PIÈCES NEUVE - PROCHE DE ROUEN
En vente : à deux pas de Rouen, nous sommes heureux de vous présenter à Tourville-la-Rivière (76410), cette maison de 7 pièces de plain-pied de 170 m² et de 630 m² de terrain.
Son intérieur offre cinq chambres, une cuisine et trois salles de bains. La maison est neuve.
L'École Primaire les Cygnes est implantée à moins de 10 minutes à pied. Niveau transports, on trouve cinq gares à moins de 10 minutes en voiture. Les autoroutes A13 et A139 et les nationales N138 et N338 sont accessibles à moins de 10 km. Il y a une bibliothèque et un commerce dans les environs.
Elle est proposée à l'achat pour 389 000 €.
Prenez contact avec Kévin XAVIER ALVES (06-58-91-13-87) pour toute question sur cette maison. Maisons Balency Boos vous accompagne à toutes les étapes de votre projet et dans tous vos projets immobiliers.

Annonce proposée par un Agent Commercial Partenaire.

Mentions légales

Terrain proposé par un partenaire foncier selon disponibilités et autorisation de publicité au prix de 80 000 €. Hors droit d'enregistrement et frais de notaire. Terrain + Maison proposés au prix de 309 000 € (Hors branchements et raccordements, papiers peints, peintures, revêtement de sol dans les chambres. Tarif modifiable sans préavis). Etiquette énergie : A. Différents modèles disponibles pour ce terrain. Assurances et garanties du constructeur (RC professionnelle, décennale, dommage ouvrage, garantie de remboursement de l'acompte, livraison à prix et délai convenu) : https://www.maisons-balency.fr/informations-legales/. HEXAOM Services est enregistré auprès de l'ORIAS en tant que Courtier en financement, Niveau 1, sous le numéro 14001345.

Contactez l'agence de Boos

02 35 80 66 66

    * Champs obligatoires

    Vos informations sont traitées par HEXAOM et transmises à un conseiller commercial qui vous contactera afin de répondre à votre demande. Les plans et images présentés sur notre site sont la propriété d’HEXAOM et ne peuvent pas être reproduits sans son accord. Pour retrouver notre politique de protection des données personnelles et exercer vos droits conformément à la « loi informatique et liberté » cliquez-ici.