Maison neuve à
Triel-sur-Seine
(78510) Référence :
MU2452391_3
Prix du projet : Maison avec Terrain
prix 324 300 €
- 6 pièces
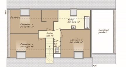
- 4 chambres
- Surface maison 117 m2
VENTE d'une maison de 6 pièces (117 m²) à Triel-sur-Seine
IDÉALEMENT SITUÉE - MAISON 6 PIÈCES NEUVE
À deux pas du Transilien J (35 min de Paris), notre agence Maisons Balency Baillet-en-France est ravie de vous proposer cette maison de 6 pièces de plain-pied de 117 m² et de 603 m² de terrain à vendre, idéalement située dans Triel-sur-Seine (78510). Elle compte quatre chambres, une cuisine et deux salles de bains.
Cette maison est neuve.
Cette maison se situe dans un secteur recherché. Plusieurs écoles (maternelle, élémentaire, primaire et collège) se trouvent à moins de 10 minutes à pied. Niveau transports en commun, il y a la gare Triel-sur-Seine dans un rayon de 1 km. On trouve une bibliothèque, un tennis, des commerces, un bureau de poste, des épiceries et une boucherie-charcuterie à quelques minutes à peine.
Son prix de vente est de 324 300 €.
N'hésitez pas à prendre contact avec notre agence (URBANSKY Mylann : 06-23-32-28-23) pour plus d'informations sur la maison, sur les démarches à suivre ou sur les modalités de vente. Faites de vos projets immobiliers une réalité avec Maisons Balency Baillet-en-France.
Annonce proposée par un Agent Commercial Partenaire.
Mentions légales
Terrain proposé par un partenaire foncier selon disponibilités et autorisation de publicité au prix de 142 300 €. Hors droit d'enregistrement et frais de notaire. Terrain + Maison proposés au prix de 324 300 € (Hors branchements et raccordements, papiers peints, peintures, revêtement de sol dans les chambres. Tarif modifiable sans préavis). Etiquette énergie : A. Différents modèles disponibles pour ce terrain. Assurances et garanties du constructeur (RC professionnelle, décennale, dommage ouvrage, garantie de remboursement de l'acompte, livraison à prix et délai convenu) : https://www.maisons-balency.fr/informations-legales/. HEXAOM Services est enregistré auprès de l'ORIAS en tant que Courtier en financement, Niveau 1, sous le numéro 14001345.Agence Maisons Balency de Baillet-en-France (95560)
- Téléphone :
- 01 34 46 05 23
- Adressse :
- 81 rue de Paris
95560 Baillet-en-France, France
