Maison neuve à
Ully-Saint-Georges
(60730) Référence :
AM2412341_1
Prix du projet : Maison avec Terrain
prix 281 000 €
- 6 pièces
- 4 chambres
- Surface maison 91 m2
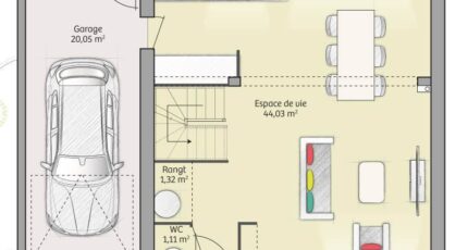
Ully-Saint-Georges : maison de 6 pièces (91 m²) en vente
PROCHE DE BEAUVAIS - MAISON 6 PIÈCES NEUVE
À vendre : située à quelques kilomètres de Beauvais, laissez vous charmer par à Ully-Saint-Georges (60730), cette maison de 6 pièces de 91 m² et de 430 m² de terrain. Elle se divise en quatre chambres, une cuisine et une salle de bains.
Cette maison possède 2 niveaux. Elle est neuve.
On trouve l'École Primaire Jean de la Fontaine à moins de 10 minutes à pied. Côté transports, il y a six gares à moins de 10 minutes en voiture. L'autoroute A16 et les nationales N31 et N184 sont accessibles à moins de 20 km. On trouve une boulangerie dans les environs.
Elle est proposée à l'achat pour 281 000 €.
N'hésitez pas à prendre contact avec Aurelien MONTANIER (tél : 06-24-66-88-34) pour plus d'informations sur cette maison, sur les modalités de vente ou sur les démarches à suivre.
Annonce proposée par un Agent Commercial Partenaire.
Mentions légales
Terrain proposé par un partenaire foncier selon disponibilités et autorisation de publicité au prix de 96 000 €. Hors droit d'enregistrement et frais de notaire. Terrain + Maison proposés au prix de 281 000 € (Hors branchements et raccordements, papiers peints, peintures, revêtement de sol dans les chambres. Tarif modifiable sans préavis). Etiquette énergie : A. Différents modèles disponibles pour ce terrain. Assurances et garanties du constructeur (RC professionnelle, décennale, dommage ouvrage, garantie de remboursement de l'acompte, livraison à prix et délai convenu) : https://www.maisons-balency.fr/informations-legales/. HEXAOM Services est enregistré auprès de l'ORIAS en tant que Courtier en financement, Niveau 1, sous le numéro 14001345.Agence Maisons Balency de Saint-Maur-des-Fossés (94100)
- Téléphone :
- 01 87 36 85 37
- Adressse :
- 12 avenue de la république
94100 Saint-Maur-des-Fossés, France
