Maison neuve à
Val-de-Reuil (27100) Référence : KXA2334073_4

Prix du projet : Maison avec Terrain

prix 399 000 €

  • 7 pièces
  • 4 chambres
  • Surface maison 160 m2

Val-de-Reuil : maison de 7 pièces (160 m²) en vente
MAISON 7 PIÈCES NEUVE - PROCHE DE ROUEN
À vendre : à 21 km de Rouen, à Val-de-Reuil (27100), Maisons Balency Boos vous propose cette maison de 7 pièces de 160 m².
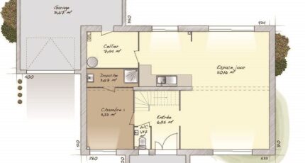
Cette maison possède 2 niveaux. Elle comporte quatre chambres, une cuisine et deux salles de bains. La maison est neuve.
Le terrain de la propriété s'étend sur 549 m².
Des écoles maternelles et élémentaires se trouvent à moins de 10 minutes à pied. Côté transports en commun, il y a les gares Val-de-Reuil, Saint-Pierre-du-Vauvray et Pont-de-l'Arche à moins de 10 minutes en voiture. Les autoroutes A13 et A154 sont accessibles à moins de 4 km. On trouve un bassin de natation, une bibliothèque, des commerces, quatre boulangeries, un supermarché, deux boucheries-charcuteries et un bureau de poste à quelques minutes du logement.
Elle est à vendre pour la somme de 399 000 €.
Contactez notre agence (XAVIER ALVES Kévin : 06-58-91-13-87) pour toute information sur le bien.

Annonce proposée par un Agent Commercial Partenaire.

Mentions légales

Terrain proposé par un partenaire foncier selon disponibilités et autorisation de publicité au prix de 78 000 €. Hors droit d'enregistrement et frais de notaire. Terrain + Maison proposés au prix de 321 000 € (Hors branchements et raccordements, papiers peints, peintures, revêtement de sol dans les chambres. Tarif modifiable sans préavis). Etiquette énergie : A. Différents modèles disponibles pour ce terrain. Assurances et garanties du constructeur (RC professionnelle, décennale, dommage ouvrage, garantie de remboursement de l'acompte, livraison à prix et délai convenu) : https://www.maisons-balency.fr/informations-legales/. HEXAOM Services est enregistré auprès de l'ORIAS en tant que Courtier en financement, Niveau 1, sous le numéro 14001345.

Contactez l'agence de Boos

02 35 80 66 66

    * Champs obligatoires

    Vos informations sont traitées par HEXAOM et transmises à un conseiller commercial qui vous contactera afin de répondre à votre demande. Les plans et images présentés sur notre site sont la propriété d’HEXAOM et ne peuvent pas être reproduits sans son accord. Pour retrouver notre politique de protection des données personnelles et exercer vos droits conformément à la « loi informatique et liberté » cliquez-ici.