Maison neuve à
Vallangoujard
(95810) Référence :
MU2298422_7
Prix du projet : Maison avec Terrain
prix 260 000 €
- 5 pièces
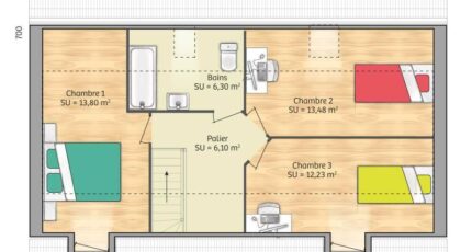
- 3 chambres
- Surface maison 80 m2
Vallangoujard : maison de 5 pièces (80 m²) en vente
IDÉALEMENT SITUÉE - MAISON 5 PIÈCES NEUVE
À vendre : proche de la gare de L'Isle-Adam-Parmain (Paris à 50 min avec le Transilien H), idéalement située dans Vallangoujard (95810), nous sommes ravis de vous proposer cette maison de 5 pièces de 80 m². Elle compte trois chambres, une cuisine et une salle de bains.
Le terrain de la propriété est de 395 m².
C'est une maison de 2 niveaux. Elle est neuve.
La maison est située dans un secteur prisé. Il y a l'École Primaire Publique Grangeon à moins de 10 minutes à pied. Niveau transports, on trouve 13 gares à moins de 10 minutes en voiture. Il y a un tennis et une bibliothèque à proximité.
Elle est proposée à l'achat pour 260 000 €.
N'hésitez pas à prendre contact avec notre agence (URBANSKY Mylann : 06-23-32-28-23) pour plus d'informations sur la maison ou sur les modalités de vente. Maisons Balency Baillet-en-France vous accompagne à toutes les étapes de votre projet et dans tous vos projets immobiliers.
Annonce proposée par un Agent Commercial Partenaire.
Mentions légales
Terrain proposé par un partenaire foncier selon disponibilités et autorisation de publicité au prix de 110 000 €. Hors droit d'enregistrement et frais de notaire. Maison proposée, avec un contrat de construction de maison individuelle, dans le cadre de la loi du 19/12/1990, au prix de 150 000 € (Hors branchements et raccordements, papiers peints, peintures, revêtement de sol dans les chambres, qui sont chiffrés dans les travaux qui restent à charge du client. Tarif modifiable sans préavis). Étiquette énergie : A. Différents modèles disponibles pour ce terrain. Assurances et garanties du constructeur comprises (RC professionnelle, décennale, dommage ouvrage).Agence Maisons Balency de Baillet-en-France (95560)
- Téléphone :
- 01 34 46 05 23
- Adressse :
- 81 rue de Paris
95560 Baillet-en-France, France
