Maison neuve à
Vallangoujard
(95810) Référence :
MU2299002_6
Prix du projet : Maison avec Terrain
prix 270 000 €
- 5 pièces
- 3 chambres
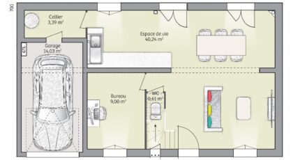
- Surface maison 90 m2
Maison F5 (90 m²) en vente à Vallangoujard
IDÉALEMENT SITUÉE - MAISON 5 PIÈCES NEUVE
Au pied du Transilien H (gare de L'Isle-Adam-Parmain, 50 min de Paris), en vente idéalement située dans Vallangoujard (95810), nous sommes ravis de vous proposer cette maison de 5 pièces de 90 m² et de 430 m² de terrain.
Cette maison possède 2 niveaux. Son intérieur offre trois chambres, une cuisine et une salle de bains. Cette maison est neuve.
La maison se situe dans un secteur convoité. L'École Primaire Publique Grangeon se trouve à moins de 10 minutes à pied. Niveau transports, il y a 13 gares à moins de 10 minutes en voiture. On trouve un tennis et une bibliothèque à quelques minutes de la maison.
Son prix de vente est de 270 000 €.
N'hésitez pas à prendre contact avec Mylann URBANSKY (06-23-32-28-23) pour tout renseignement sur le bien ou sur les modalités de vente. Maisons Balency Baillet-en-France est là pour vous accompagner dans toutes vos démarches.
Annonce proposée par un Agent Commercial Partenaire.
Mentions légales
Terrain proposé par un partenaire foncier selon disponibilités et autorisation de publicité au prix de 110 000 €. Hors droit d'enregistrement et frais de notaire. Maison proposée, avec un contrat de construction de maison individuelle, dans le cadre de la loi du 19/12/1990, au prix de 160 000 € (Hors branchements et raccordements, papiers peints, peintures, revêtement de sol dans les chambres, qui sont chiffrés dans les travaux qui restent à charge du client. Tarif modifiable sans préavis). Étiquette énergie : A. Différents modèles disponibles pour ce terrain. Assurances et garanties du constructeur comprises (RC professionnelle, décennale, dommage ouvrage).Agence Maisons Balency de Baillet-en-France (95560)
- Téléphone :
- 01 34 46 05 23
- Adressse :
- 81 rue de Paris
95560 Baillet-en-France, France
