Maison neuve à
Vallangoujard
(95810) Référence :
CT2346550_2
Prix du projet : Maison avec Terrain
prix 297 200 €
- 4 pièces
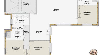
- 3 chambres
- Surface maison 94 m2
VENTE : maison de 4 pièces (94 m²) à Vallangoujard
IDÉALEMENT SITUÉE - MAISON 4 PIÈCES NEUVE
Au pied du Transilien H (gare de L'Isle-Adam-Parmain, 50 min de Paris), à vendre idéalement située dans Vallangoujard (95810), nous sommes ravis de vous proposer cette maison de 4 pièces de plain-pied de 94 m². Conçue de plain-pied, elle propose trois chambres, une cuisine et deux salles de bains.
Le terrain de cette maison est de 400 m².
La maison est neuve.
Cette propriété se trouve dans un quartier convoité. Il y a l'École Primaire Publique Grangeon à moins de 10 minutes à pied. Côté transports, on trouve 13 gares à moins de 10 minutes en voiture. On trouve un tennis et une bibliothèque à proximité.
Elle est proposée à l'achat pour 297 200 €.
N'hésitez pas à prendre contact avec Christophe TALAMONI (tél : 06-49-55-08-27) pour toute question sur la maison, sur les démarches à suivre ou sur les modalités de vente.
Annonce proposée par un Agent Commercial Partenaire.
Mentions légales
Terrain proposé par un partenaire foncier selon disponibilités et autorisation de publicité au prix de 90 000 €. Hors droit d'enregistrement et frais de notaire. Terrain + Maison proposés au prix de 297 200 € (Hors branchements et raccordements, papiers peints, peintures, revêtement de sol dans les chambres. Tarif modifiable sans préavis). Etiquette énergie : A. Différents modèles disponibles pour ce terrain. Assurances et garanties du constructeur (RC professionnelle, décennale, dommage ouvrage, garantie de remboursement de l'acompte, livraison à prix et délai convenu) : https://www.maisons-balency.fr/informations-legales/. HEXAOM Services est enregistré auprès de l'ORIAS en tant que Courtier en financement, Niveau 1, sous le numéro 14001345.Agence Maisons Balency de Baillet-en-France (95560)
- Téléphone :
- 01 34 46 05 23
- Adressse :
- 81 rue de Paris
95560 Baillet-en-France, France
