Maison neuve à
Valliquerville (76190) Référence : EL2340708_3

Prix du projet : Maison avec Terrain

prix 155 000 €

  • 4 pièces
  • 2 chambres
  • Surface maison 50 m2

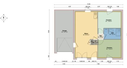
Maison de 4 pièces (50 m²) en vente à Valliquerville
IDÉALEMENT SITUÉE - MAISON 4 PIÈCES NEUVE
En vente : à 26 km de la Manche, découvrez, idéalement située dans Valliquerville (76190), cette maison de 4 pièces de plain-pied de 50 m². Elle inclut deux chambres, une cuisine et une salle de bains.
Le terrain de la maison s'étend sur 652 m².
Cette maison est neuve.
Cette maison est située dans un quartier attractif. L'École Primaire Jehan le Povremoyne se trouve à moins de 10 minutes à pied. Côté transports, il y a les gares Yvetot et Foucart-Alvimare à moins de 10 minutes en voiture. Les autoroutes A29 et A150 sont accessibles à moins de 9 km. On trouve un tennis à quelques minutes à peine.
Elle est proposée à l'achat pour 155 000 €.
N'hésitez pas à prendre contact avec Dany LEOVANT (tél : 06-09-43-87-49) pour toute information sur la maison, sur les démarches à suivre et sur les modalités de vente. Maisons Balency Boos vous accompagne dans tous vos projets immobiliers et dans toutes vos démarches.

Annonce proposée par un Agent Commercial Partenaire.

Mentions légales

Terrain proposé par un partenaire foncier selon disponibilités et autorisation de publicité au prix de 50 000 €. Hors droit d'enregistrement et frais de notaire. Terrain + Maison proposés au prix de 105 000 € (Hors branchements et raccordements, papiers peints, peintures, revêtement de sol dans les chambres. Tarif modifiable sans préavis). Etiquette énergie : A. Différents modèles disponibles pour ce terrain. Assurances et garanties du constructeur (RC professionnelle, décennale, dommage ouvrage, garantie de remboursement de l'acompte, livraison à prix et délai convenu) : https://www.maisons-balency.fr/informations-legales/. HEXAOM Services est enregistré auprès de l'ORIAS en tant que Courtier en financement, Niveau 1, sous le numéro 14001345.

Contactez l'agence de Boos

02 35 80 66 66

    * Champs obligatoires

    Vos informations sont traitées par HEXAOM et transmises à un conseiller commercial qui vous contactera afin de répondre à votre demande. Les plans et images présentés sur notre site sont la propriété d’HEXAOM et ne peuvent pas être reproduits sans son accord. Pour retrouver notre politique de protection des données personnelles et exercer vos droits conformément à la « loi informatique et liberté » cliquez-ici.