Maison neuve à
Valliquerville (76190) Référence : SEM9012_3

Prix du projet : Maison avec Terrain

prix 179 000 €

  • 5 pièces
  • 3 chambres
  • Surface maison 76 m2

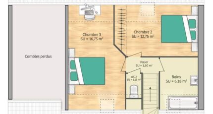
VENTE d'une maison F5 (76 m²) à Valliquerville
MAISON 5 PIÈCES NEUVE
À vendre : à 26 km de la Manche, notre agence Maisons Balency Boos est heureuse de vous proposer cette maison de 5 pièces de 76 m² à Valliquerville (76190). Elle comporte trois chambres, une cuisine et une salle de bains.
Le terrain du bien s'étend sur 650 m².
Cette maison possède 2 niveaux. Elle est neuve.
L'École Primaire Jehan le Povremoyne est implantée à moins de 10 minutes à pied. Côté transports en commun, on trouve deux gares (Yvetot et Foucart-Alvimare) à moins de 10 minutes en voiture. Les autoroutes A29 et A150 sont accessibles à moins de 9 km. Il y a un tennis à quelques minutes à peine.
Elle est proposée à l'achat pour 179 000 €.
Prenez contact avec notre agence (Sébastien MASSON : 06-23-38-14-17) pour plus de renseignements sur la maison, sur les démarches à suivre ou sur les modalités de vente. Maisons Balency Boos vous accompagne à toutes les étapes de l'achat et dans tous vos projets immobiliers.

Annonce proposée par un Agent Commercial Partenaire.

Mentions légales

Terrain proposé par un partenaire foncier selon disponibilités et autorisation de publicité au prix de 52 000 €. Hors droit d'enregistrement et frais de notaire. Maison proposée, avec un contrat de construction de maison individuelle, dans le cadre de la loi du 19/12/1990, au prix de 127 000 € (Hors branchements et raccordements, papiers peints, peintures, revêtement de sol dans les chambres, qui sont chiffrés dans les travaux qui restent à charge du client. Tarif modifiable sans préavis). Étiquette énergie : A. Différents modèles disponibles pour ce terrain. Assurances et garanties du constructeur comprises (RC professionnelle, décennale, dommage ouvrage).

Contactez l'agence de Boos

02 35 80 66 66

    * Champs obligatoires

    Vos informations sont traitées par HEXAOM et transmises à un conseiller commercial qui vous contactera afin de répondre à votre demande. Les plans et images présentés sur notre site sont la propriété d’HEXAOM et ne peuvent pas être reproduits sans son accord. Pour retrouver notre politique de protection des données personnelles et exercer vos droits conformément à la « loi informatique et liberté » cliquez-ici.