Maison neuve à
Valliquerville (76190) Référence : SEM9012_7

Prix du projet : Maison avec Terrain

prix 246 000 €

  • 9 pièces
  • 5 chambres
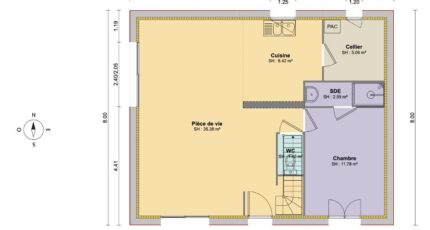
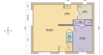
  • Surface maison 124 m2

Maison de 9 pièces (124 m²) en vente à Valliquerville
MAISON 9 PIÈCES NEUVE
À 26 km de la Manche, Maisons Balency Boos vous propose en vente à Valliquerville (76190), cette maison de 9 pièces de 124 m² et de 650 m² de terrain. Son intérieur comporte cinq chambres, une cuisine et trois salles de bains.
Cette maison possède 2 niveaux. Elle est neuve.
L'École Primaire Jehan le Povremoyne est implantée à moins de 10 minutes à pied. Côté transports en commun, il y a deux gares (Yvetot et Foucart-Alvimare) à moins de 10 minutes en voiture. Les autoroutes A29 et A150 sont accessibles à moins de 9 km. On trouve un tennis dans les environs.
Elle est proposée à l'achat pour 246 000 €.
Prenez contact avec Sébastien MASSON (06-23-38-14-17) pour toute information sur cette maison, sur les démarches à suivre ou sur les modalités de vente. Maisons Balency Boos est là pour vous accompagner dans tous vos projets immobiliers.

Annonce proposée par un Agent Commercial Partenaire.

Mentions légales

Terrain proposé par un partenaire foncier selon disponibilités et autorisation de publicité au prix de 52 000 €. Hors droit d'enregistrement et frais de notaire. Maison proposée, avec un contrat de construction de maison individuelle, dans le cadre de la loi du 19/12/1990, au prix de 194 000 € (Hors branchements et raccordements, papiers peints, peintures, revêtement de sol dans les chambres, qui sont chiffrés dans les travaux qui restent à charge du client. Tarif modifiable sans préavis). Étiquette énergie : A. Différents modèles disponibles pour ce terrain. Assurances et garanties du constructeur comprises (RC professionnelle, décennale, dommage ouvrage).

Contactez l'agence de Boos

02 35 80 66 66

    * Champs obligatoires

    Vos informations sont traitées par HEXAOM et transmises à un conseiller commercial qui vous contactera afin de répondre à votre demande. Les plans et images présentés sur notre site sont la propriété d’HEXAOM et ne peuvent pas être reproduits sans son accord. Pour retrouver notre politique de protection des données personnelles et exercer vos droits conformément à la « loi informatique et liberté » cliquez-ici.