Maison neuve à
Vaugrigneuse
(91640) Référence :
KM2425956_3
Prix du projet : Maison avec Terrain
prix 322 605 €
- 5 pièces
- 3 chambres
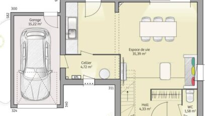
- Surface maison 90 m2
VENTE : maison de 5 pièces (90 m²) à Vaugrigneuse
PROCHE DE BOULOGNE-BILLANCOURT - MAISON 5 PIÈCES NEUVE
En vente : à côté de la station Breuillet Village du RER C (40 min de Paris), notre agence Maisons Balency Ormoy est ravie de vous proposer cette maison de 5 pièces de 90 m² et de 632 m² de terrain à Vaugrigneuse (91640). Son intérieur dispose de trois chambres, d'une cuisine et d'une salle de bains.
C'est une maison de 2 niveaux. Elle est neuve.
L'École Élémentaire les Pensées et l'École Maternelle Daniel Balavoine sont implantées à moins de 10 minutes à pied. Niveau transports, on trouve la ligne de RER C (Breuillet-Village) ainsi que six gares à moins de 10 minutes en voiture. Il y a un tennis dans les environs.
Elle est proposée à l'achat pour 322 605 €.
Contactez Karim MOUSSA (tél : 06-49-43-56-27) pour plus d'informations sur cette maison ou sur les modalités de vente. Donnez vie à vos projets immobiliers avec Maisons Balency Ormoy.
Annonce proposée par un Agent Commercial Partenaire.
Mentions légales
Terrain proposé par un partenaire foncier selon disponibilités et autorisation de publicité au prix de 135 000 €. Hors droit d'enregistrement et frais de notaire. Terrain + Maison proposés au prix de 322 605 € (Hors branchements et raccordements, papiers peints, peintures, revêtement de sol dans les chambres. Tarif modifiable sans préavis). Etiquette énergie : A. Différents modèles disponibles pour ce terrain. Assurances et garanties du constructeur (RC professionnelle, décennale, dommage ouvrage, garantie de remboursement de l'acompte, livraison à prix et délai convenu) : https://www.maisons-balency.fr/informations-legales/. HEXAOM Services est enregistré auprès de l'ORIAS en tant que Courtier en financement, Niveau 1, sous le numéro 14001345.Agence Maisons Balency de Ormoy (91540)
- Téléphone :
- 09 67 70 15 81
- Adressse :
- 23 chemin de Tournenfils - 1er étage
91540 Ormoy, France
