Maison neuve à
Vauréal (95490) Référence : DD2359659_1

Prix du projet : Maison avec Terrain

prix 412 800 €

  • 6 pièces
  • 4 chambres
  • Surface maison 98 m2

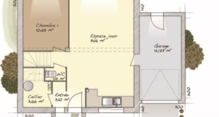
Vauréal : maison F6 (98 m²) à vendre
MAISON 6 PIÈCES NEUVE - PROCHE DE PARIS
À quelques minutes de la station Cergy le Haut (Paris à 40 min par le RER A), Maisons Balency Pontoise vous présente cette maison de 6 pièces de 98 m² et de 936 m² de terrain à Vauréal (95490).
Cette maison possède 2 niveaux. Elle offre quatre chambres, une cuisine et une salle de bains. La maison est neuve.
Des établissements scolaires de tous types sont implantés à moins de 10 minutes à pied, tout comme quatre structures d'accueil pour les enfants en bas âge. Côté transports, on trouve deux lignes de RER (A et C) ainsi que 31 gares à moins de 10 minutes en voiture. Il y a une bibliothèque, un bassin de natation, deux tennis, des commerces, des boulangeries, deux supermarchés, deux boucheries-charcuteries et un bureau de poste à quelques minutes.
Son prix de vente est de 412 800 €.
Contactez Denis DUCOS (tél : 06-80-06-50-40) pour obtenir de plus amples informations sur ce bien. Concrétisez vos projets immobiliers avec Maisons Balency Pontoise.

Annonce proposée par un Agent Commercial Partenaire.

Mentions légales

Terrain proposé par un partenaire foncier selon disponibilités et autorisation de publicité au prix de 162 000 €. Hors droit d'enregistrement et frais de notaire. Terrain + Maison proposés au prix de 250 800 € (Hors branchements et raccordements, papiers peints, peintures, revêtement de sol dans les chambres. Tarif modifiable sans préavis). Etiquette énergie : A. Différents modèles disponibles pour ce terrain. Assurances et garanties du constructeur (RC professionnelle, décennale, dommage ouvrage, garantie de remboursement de l'acompte, livraison à prix et délai convenu) : https://www.maisons-balency.fr/informations-legales/. HEXAOM Services est enregistré auprès de l'ORIAS en tant que Courtier en financement, Niveau 1, sous le numéro 14001345.

Contactez l'agence de Pontoise

01 39 91 70 10

    * Champs obligatoires

    Vos informations sont traitées par HEXAOM et transmises à un conseiller commercial qui vous contactera afin de répondre à votre demande. Les plans et images présentés sur notre site sont la propriété d’HEXAOM et ne peuvent pas être reproduits sans son accord. Pour retrouver notre politique de protection des données personnelles et exercer vos droits conformément à la « loi informatique et liberté » cliquez-ici.