Maison neuve à
Vaux-sur-Seine
(78740) Référence :
TD2255623_4
Prix du projet : Maison avec Terrain
prix 392 670 €
- 6 pièces
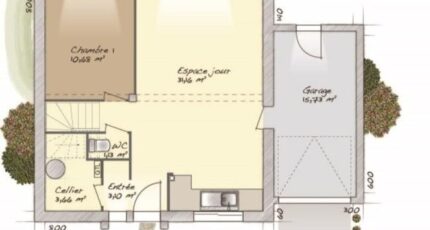
- 4 chambres
- Surface maison 98 m2
Maison F6 (98 m²) en vente à Vaux-sur-Seine
IDÉALEMENT SITUÉE - MAISON 6 PIÈCES NEUVE
En vente : à côté du Transilien J (35 min de Paris), nous sommes ravis de vous proposer, idéalement située dans Vaux-sur-Seine (78740), cette maison de 6 pièces de 98 m² et de 582 m² de terrain.
C'est une maison de 2 niveaux. Elle inclut quatre chambres, une cuisine et une salle de bains. Cette maison est neuve.
La propriété se situe dans un secteur attractif. L'École Maternelle des Groux et l'École Élémentaire Marie Curie se trouvent à moins de 10 minutes à pied. Niveau transports en commun, il y a la gare Vaux-sur-Seine à proximité. Il y a une bibliothèque, un tennis, deux commerces, trois boulangeries, un bureau de poste et une épicerie dans les environs.
Elle est à vendre pour la somme de 392 670 €.
Prenez contact avec notre agence (DUTEURTRE Thibault : 06-23-41-73-81) pour plus d'informations sur la maison, sur les modalités de vente ou sur les démarches à suivre. Maisons Balency Coignières est là pour vous accompagner à toutes les étapes de votre projet.
Annonce proposée par un Agent Commercial Partenaire.
Mentions légales
Terrain proposé par un partenaire foncier selon disponibilités et autorisation de publicité au prix de 149 000 €. Hors droit d'enregistrement et frais de notaire. Maison proposée, avec un contrat de construction de maison individuelle, dans le cadre de la loi du 19/12/1990, au prix de 243 670 € (Hors branchements et raccordements, papiers peints, peintures, revêtement de sol dans les chambres, qui sont chiffrés dans les travaux qui restent à charge du client. Tarif modifiable sans préavis). Étiquette énergie : A. Différents modèles disponibles pour ce terrain. Assurances et garanties du constructeur comprises (RC professionnelle, décennale, dommage ouvrage).Agence Maisons Balency de Coignières (78310)
- Téléphone :
- 01 34 61 42 59
- Adressse :
- Domexpo Ouest
78310 Coignières, France
