Maison neuve à
Vernou-la-Celle-sur-Seine
(77670) Référence :
AM2361218_2
Prix du projet : Maison avec Terrain
prix 444 780 €
- 6 pièces
- 5 chambres
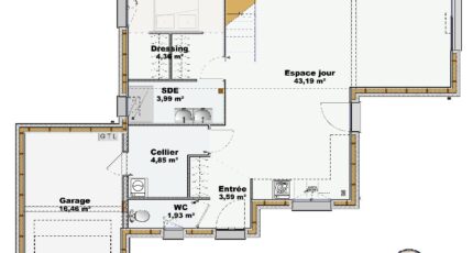
- Surface maison 114 m2
PROJET TERRAIN + MAISON + NOTAIRE + VIABILISATION = 444 780€
À vendre : à deux pas de Melun, nous vous proposons, bénéficiant d'un emplacement privilégié dans Vernou-la-Celle-sur-Seine (77670), cette maison de 6 pièces de 114 m².
Cette maison possède 2 niveaux. Son intérieur dispose de cinq chambres, d'une cuisine et de deux salles de bains. Cette maison est neuve.
Le terrain de la propriété s'étend sur 858 m².
Cette maison se situe dans un quartier recherché. L'École Primaire Michel Legrand se trouve à moins de 10 minutes à pied. Niveau transports en commun, il y a la gare Vernou-la-Celle-sur-Seine juste à côté. On trouve un tennis, un bassin de natation, une boulangerie et une épicerie à quelques minutes à peine.
Son prix de vente est de 444 780 €.
Prenez contact avec notre agence (MOINE Arnaud : 06-40-48-40-55) pour toute question sur la propriété, sur les démarches à suivre et sur les modalités de vente.
Annonce proposée par un Agent Commercial Partenaire.
Mentions légales
Terrain proposé par un partenaire foncier selon disponibilités et autorisation de publicité au prix de 105 000 €. Hors droit d'enregistrement et frais de notaire. Terrain + Maison proposés au prix de 339 780 € (Hors branchements et raccordements, papiers peints, peintures, revêtement de sol dans les chambres. Tarif modifiable sans préavis). Etiquette énergie : A. Différents modèles disponibles pour ce terrain. Assurances et garanties du constructeur (RC professionnelle, décennale, dommage ouvrage, garantie de remboursement de l'acompte, livraison à prix et délai convenu) : https://www.maisons-balency.fr/informations-legales/. HEXAOM Services est enregistré auprès de l'ORIAS en tant que Courtier en financement, Niveau 1, sous le numéro 14001345.Agence Maisons Balency de Moret-sur-Loing (77250)
- Téléphone :
- 09 78 81 26 91
- Adressse :
- 96 avenue de Fontainebleau
77250 Moret-sur-Loing, France
