Maison neuve à
Vers-Pont-du-Gard (30210) Référence : PP2364251_2

Prix du projet : Maison avec Terrain

prix 331 600 €

  • 4 pièces
  • 3 chambres
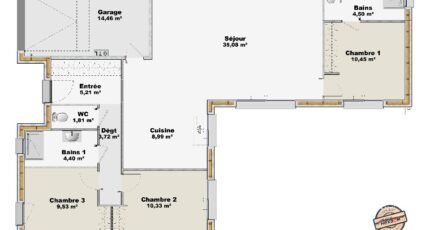
  • Surface maison 94 m2

Vers-Pont-du-Gard : maison F4 (94 m²) en vente
IDÉALEMENT SITUÉE - MAISON 4 PIÈCES NEUVE
En vente : localisée à 48 km de la mer Méditerranée et à deux pas de Nîmes, idéalement située dans Vers-Pont-du-Gard (30210), nous vous présentons cette maison de 4 pièces de plain-pied de 94 m². Elle comporte trois chambres, une cuisine et deux salles de bains.
Le terrain de cette maison est de 708 m².
Cette maison est neuve.
Le bien se trouve dans un quartier attractif. On y trouve des écoles maternelles et élémentaires ainsi qu'une structure d'accueil pour les enfants en bas âge. L'autoroute A9 et la nationale N100 sont accessibles à moins de 7 km. Il y a un tennis, une boulangerie, un commerce et un bureau de poste à quelques minutes à peine.
Il est proposé à l'achat pour 331 600 €.
Contactez Pascale PIEL (tél : O6-O1-26-64-83) pour tout renseignement sur la maison. Maisons Balency Uzès est là pour vous accompagner dans toutes vos démarches.

Mentions légales

Terrain proposé par un partenaire foncier selon disponibilités et autorisation de publicité au prix de 109 000 €. Hors droit d'enregistrement et frais de notaire. Terrain + Maison proposés au prix de 222 600 € (Hors branchements et raccordements, papiers peints, peintures, revêtement de sol dans les chambres. Tarif modifiable sans préavis). Etiquette énergie : A. Différents modèles disponibles pour ce terrain. Assurances et garanties du constructeur (RC professionnelle, décennale, dommage ouvrage, garantie de remboursement de l'acompte, livraison à prix et délai convenu) : https://www.maisons-balency.fr/informations-legales/. HEXAOM Services est enregistré auprès de l'ORIAS en tant que Courtier en financement, Niveau 1, sous le numéro 14001345.

Contactez l'agence de Uzès

04 66 57 25 45

    * Champs obligatoires

    Vos informations sont traitées par HEXAOM et transmises à un conseiller commercial qui vous contactera afin de répondre à votre demande. Les plans et images présentés sur notre site sont la propriété d’HEXAOM et ne peuvent pas être reproduits sans son accord. Pour retrouver notre politique de protection des données personnelles et exercer vos droits conformément à la « loi informatique et liberté » cliquez-ici.