Maison neuve à
Verson
(14790) Référence :
SU2385089_1
Prix du projet : Maison avec Terrain
prix 368 900 €
- 7 pièces
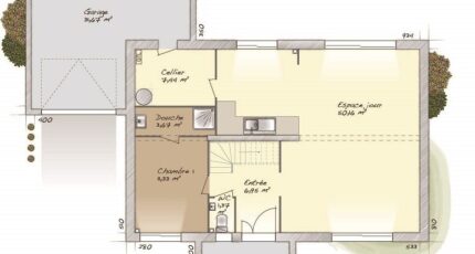
- 4 chambres
- Surface maison 140 m2
Maison de 7 pièces (140 m²) en vente à Verson
PROCHE DE CAEN - MAISON 7 PIÈCES NEUVE
À vendre : à 20 km de la mer et à moins de 10 km du centre-ville de Caen, venez découvrir cette maison de 7 pièces de 140 m² et de 375 m² de terrain à Verson (14790).
Il s'agit d'une maison de 2 niveaux. Elle offre quatre chambres, une cuisine et deux salles de bains. Cette maison est neuve.
L'École Maternelle Françoise Dolto, le Collège Jacques Prévert et l'École Élémentaire Victor Hugo sont implantés à moins de 10 minutes à pied. Côté transports, on trouve la gare de Caen à moins de 10 minutes en voiture. La commune est desservie par les bus de ville TWISTO ainsi que les transports scolaires. L'autoroute A84 et les nationales N814, N13 et N158 sont accessibles à moins de 9 km. Il y a plusieurs gymnases omnisport, des commerces, un supermarché, deux boulangeries, un bureau de poste et une épicerie à quelques minutes du bien.
Elle est proposée à l'achat pour 368 900 €.
Prenez contact avec notre agence (Sophie UCENDO : 06-35-39-35-17) pour plus d'informations sur cette maison ou sur les démarches à suivre.
Mentions légales
Terrain proposé par un partenaire foncier selon disponibilités et autorisation de publicité au prix de 82 000 €. Hors droit d'enregistrement et frais de notaire. Terrain + Maison proposés au prix de 368 900 € (Hors branchements et raccordements, papiers peints, peintures, revêtement de sol dans les chambres. Tarif modifiable sans préavis). Etiquette énergie : A. Différents modèles disponibles pour ce terrain. Assurances et garanties du constructeur (RC professionnelle, décennale, dommage ouvrage, garantie de remboursement de l'acompte, livraison à prix et délai convenu) : https://www.maisons-balency.fr/informations-legales/. HEXAOM Services est enregistré auprès de l'ORIAS en tant que Courtier en financement, Niveau 1, sous le numéro 14001345.Agence Maisons Balency de Caen (14000)
- Téléphone :
- 02 31 50 38 15
- Adressse :
- 133, rue Saint Jean
14000 Caen, France
