Maison neuve à
Verson
(14790) Référence :
SU2385089_2
Prix du projet : Maison avec Terrain
prix 242 900 €
- 4 pièces
- 2 chambres
- Surface maison 70 m2
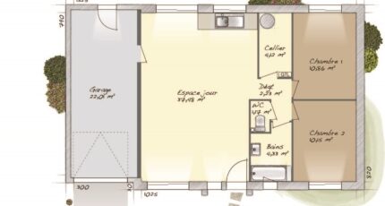
VENTE d'une maison de 4 pièces (70 m²) à Verson
PROCHE DE CAEN - MAISON 4 PIÈCES NEUVE
En vente : située à 20 km de la mer et à moins de 10 km du centre-ville de Caen, à Verson (14790), Maisons Balency Caen vous présente cette maison de 4 pièces de plain-pied de 70 m². Elle inclut deux chambres, une cuisine et une salle de bains.
Le terrain du bien est de 375 m².
Cette maison est neuve.
L'École Maternelle Françoise Dolto, le Collège Jacques Prévert et l'École Élémentaire Victor Hugo sont implantés à moins de 10 minutes à pied. Niveau transports, on trouve la gare de Caen à moins de 10 minutes en voiture. La commune est desservie par les bus de ville TWISTO ainsi que les transports scolaires. L'autoroute A84 et les nationales N814, N13 et N158 sont accessibles à moins de 9 km. Il y a plusieurs gymnases omnisport, des commerces, un supermarché, deux boulangeries, un bureau de poste et une épicerie à quelques minutes du bien.
Elle est proposée à l'achat pour 242 900 €.
Contactez Sophie UCENDO (06-35-39-35-17) pour toute question sur cette maison. Donnez vie à vos projets immobiliers avec Maisons Balency Caen.
Mentions légales
Terrain proposé par un partenaire foncier selon disponibilités et autorisation de publicité au prix de 82 000 €. Hors droit d'enregistrement et frais de notaire. Terrain + Maison proposés au prix de 160 900 € (Hors branchements et raccordements, papiers peints, peintures, revêtement de sol dans les chambres. Tarif modifiable sans préavis). Etiquette énergie : A. Différents modèles disponibles pour ce terrain. Assurances et garanties du constructeur (RC professionnelle, décennale, dommage ouvrage, garantie de remboursement de l'acompte, livraison à prix et délai convenu) : https://www.maisons-balency.fr/informations-legales/. HEXAOM Services est enregistré auprès de l'ORIAS en tant que Courtier en financement, Niveau 1, sous le numéro 14001345.Agence Maisons Balency de Caen (14000)
- Téléphone :
- 02 31 50 38 15
- Adressse :
- 133, rue Saint Jean
14000 Caen, France
