Maison neuve à
Tourny (27510) Référence : SEMA9037_7

Prix du projet : Maison avec Terrain

prix 185 000 €

  • 4 pièces
  • 2 chambres
  • Surface maison 50 m2

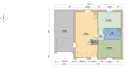
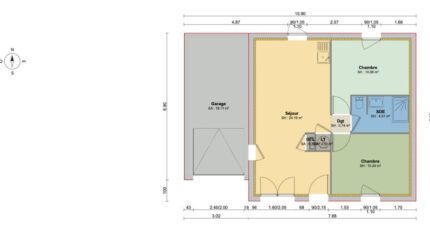
VENTE d'une maison F4 (49 m²) à Vexin-Sur-Epte
MAISON 4 PIÈCES NEUVE - PROCHE DE MANTES-LA-JOLIE
À vendre : localisée à deux pas de Mantes-la-Jolie, nous sommes ravis de vous proposer à Vexin-Sur-Epte (27510), cette maison de 4 pièces de plain-pied de 49 m². Conçue de plain-pied, elle est composée de deux chambres, d'une cuisine et d'une salle de bains.
Le terrain de la propriété s'étend sur 1 000 m².
Cette maison est neuve.
Il y a des écoles du primaire et du secondaire à moins de 10 minutes en voiture, tout comme deux structures d'accueil pour les enfants en bas âge à moins de 10 minutes à pied. On trouve des tennis, des commerces, des boulangeries, trois supermarchés, quatre épiceries et des boucheries-charcuteries dans les environs.
Son prix de vente est de 185 000 €.
N'hésitez pas à prendre contact avec Sébastien MASSON (06-23-38-14-17) pour toute information sur la maison ou sur les démarches à suivre.

Annonce proposée par un Agent Commercial Partenaire.

Mentions légales

Terrain proposé par un partenaire foncier selon disponibilités et autorisation de publicité au prix de 73 000 €. Hors droit d'enregistrement et frais de notaire. Terrain + Maison proposés au prix de 185 000 € (Hors branchements et raccordements, papiers peints, peintures, revêtement de sol dans les chambres. Tarif modifiable sans préavis). Etiquette énergie : A. Différents modèles disponibles pour ce terrain. Assurances et garanties du constructeur (RC professionnelle, décennale, dommage ouvrage, garantie de remboursement de l'acompte, livraison à prix et délai convenu) : https://www.maisons-balency.fr/informations-legales/. HEXAOM Services est enregistré auprès de l'ORIAS en tant que Courtier en financement, Niveau 1, sous le numéro 14001345.

Contactez l'agence de Boos

02 35 80 66 66

    * Champs obligatoires

    Vos informations sont traitées par HEXAOM et transmises à un conseiller commercial qui vous contactera afin de répondre à votre demande. Les plans et images présentés sur notre site sont la propriété d’HEXAOM et ne peuvent pas être reproduits sans son accord. Pour retrouver notre politique de protection des données personnelles et exercer vos droits conformément à la « loi informatique et liberté » cliquez-ici.