Maison neuve à
Vienne-en-Bessin
(14400) Référence :
SU2396641_1
Prix du projet : Maison avec Terrain
prix 321 900 €
- 5 pièces
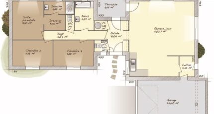
- 3 chambres
- Surface maison 120 m2
Vienne-en-Bessin : maison T5 (120 m²) en vente
MAISON 5 PIÈCES NEUVE - PROCHE DE BAYEUX
À à 5 minutes de BAYEUX, 10 minutes de la mer (ASNELLES ou ARROMANCHES) et 15 minutes de CAEN, découvrez cette maison de 5 pièces de plain-pied de 120 m² en vente à Vienne-en-Bessin (14400). Elle dispose de trois chambres, d'une cuisine et de deux salles de bains.
Le terrain du bien est de 400 m².
Cette maison est neuve.
Tous les types d'établissements scolaires se trouvent à moins de 10 minutes en voiture, tout comme deux structures d'accueil pour les tout-petits à moins de 10 minutes à pied. Niveau transports, il y a les gares Bayeux et Audrieu à moins de 10 minutes en voiture. La nationale N13 est accessible à 4 km. On trouve plusieurs gymnases omnisport, des bibliothèques, un bowling, des commerces, des boulangeries, des supermarchés, deux supérettes et quatre bureaux de poste à quelques minutes. Enfin, 2 marchés animent le quartier.
Elle est à vendre pour la somme de 321 900 €.
Contactez notre agence (Sophie UCENDO : 06-35-39-35-17) pour plus de renseignements sur le bien et sur les démarches à suivre.
Mentions légales
Terrain proposé par un partenaire foncier selon disponibilités et autorisation de publicité au prix de 49 900 €. Hors droit d'enregistrement et frais de notaire. Terrain + Maison proposés au prix de 321 900 € (Hors branchements et raccordements, papiers peints, peintures, revêtement de sol dans les chambres. Tarif modifiable sans préavis). Etiquette énergie : A. Différents modèles disponibles pour ce terrain. Assurances et garanties du constructeur (RC professionnelle, décennale, dommage ouvrage, garantie de remboursement de l'acompte, livraison à prix et délai convenu) : https://www.maisons-balency.fr/informations-legales/. HEXAOM Services est enregistré auprès de l'ORIAS en tant que Courtier en financement, Niveau 1, sous le numéro 14001345.Agence Maisons Balency de Caen (14000)
- Téléphone :
- 02 31 50 38 15
- Adressse :
- 133, rue Saint Jean
14000 Caen, France
