Maison neuve à
Vieux-Villez (27600) Référence : EL2312431_3

Prix du projet : Maison avec Terrain

prix 336 900 €

  • 5 pièces
  • 3 chambres
  • Surface maison 120 m2

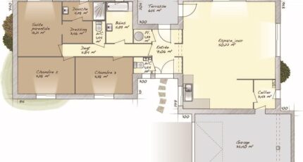
Maison de 5 pièces (120 m²) en vente à Vieux-Villez
IDÉALEMENT SITUÉE - MAISON 5 PIÈCES NEUVE
En vente : localisée à quelques kilomètres d'Évreux, laissez vous charmer par, idéalement située dans Vieux-Villez (27600), cette maison de 5 pièces de plain-pied de 120 m².
Conçue de plain-pied, elle se divise en trois chambres, une cuisine et deux salles de bains. Cette maison est neuve.
Le terrain de la propriété est de 1 379 m².
La maison se trouve dans un quartier attractif. Côté transports en commun, il y a les gares Gaillon-Aubevoye et Saint-Pierre-du-Vauvray à moins de 10 minutes en voiture. Les autoroutes A13 et A154 et la nationale N154 sont accessibles à moins de 9 km. On trouve un commerce à quelques minutes à peine.
Elle est proposée à l'achat pour 336 900 €.
Contactez Aurélien LEOVANT (tél : 02-35-80-66-66) pour toute question sur la propriété, sur les démarches à suivre ou sur les modalités de vente.

Annonce proposée par un Agent Commercial Partenaire.

Mentions légales

Terrain proposé par un partenaire foncier selon disponibilités et autorisation de publicité au prix de 65 000 €. Hors droit d'enregistrement et frais de notaire. Maison proposée, avec un contrat de construction de maison individuelle, dans le cadre de la loi du 19/12/1990, au prix de 271 900 € (Hors branchements et raccordements, papiers peints, peintures, revêtement de sol dans les chambres, qui sont chiffrés dans les travaux qui restent à charge du client. Tarif modifiable sans préavis). Étiquette énergie : A. Différents modèles disponibles pour ce terrain. Assurances et garanties du constructeur comprises (RC professionnelle, décennale, dommage ouvrage).

Contactez l'agence de Boos

02 35 80 66 66

    * Champs obligatoires

    Vos informations sont traitées par HEXAOM et transmises à un conseiller commercial qui vous contactera afin de répondre à votre demande. Les plans et images présentés sur notre site sont la propriété d’HEXAOM et ne peuvent pas être reproduits sans son accord. Pour retrouver notre politique de protection des données personnelles et exercer vos droits conformément à la « loi informatique et liberté » cliquez-ici.