Maison neuve à
Vieux-Villez (27600) Référence : EL2312431_5

Prix du projet : Maison avec Terrain

prix 282 500 €

  • 6 pièces
  • 4 chambres
  • Surface maison 117 m2

Maison F6 (117 m²) en vente à Vieux-Villez
IDÉALEMENT SITUÉE - MAISON 6 PIÈCES NEUVE
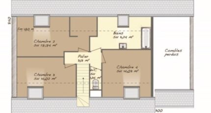
En vente : localisée à quelques kilomètres d'Évreux, idéalement située dans Vieux-Villez (27600), venez découvrir cette maison de 6 pièces de plain-pied de 117 m². Conçue de plain-pied, elle compte quatre chambres, une cuisine et deux salles de bains.
Le terrain de cette maison est de 1 379 m².
Cette maison est neuve.
La maison se trouve dans un secteur attractif. Niveau transports en commun, il y a deux gares (Gaillon-Aubevoye et Saint-Pierre-du-Vauvray) à moins de 10 minutes en voiture. Les autoroutes A13 et A154 et la nationale N154 sont accessibles à moins de 9 km. On trouve un commerce à quelques minutes.
Son prix de vente est de 282 500 €.
Contactez notre agence (LEOVANT Aurélien : 02-35-80-66-66) pour toute information sur la propriété ou sur les démarches à suivre. Maisons Balency Boos vous accompagne à toutes les étapes de l'achat et dans tous vos projets immobiliers.

Annonce proposée par un Agent Commercial Partenaire.

Mentions légales

Terrain proposé par un partenaire foncier selon disponibilités et autorisation de publicité au prix de 65 000 €. Hors droit d'enregistrement et frais de notaire. Terrain + Maison proposés au prix de 217 500 € (Hors branchements et raccordements, papiers peints, peintures, revêtement de sol dans les chambres. Tarif modifiable sans préavis). Etiquette énergie : A. Différents modèles disponibles pour ce terrain. Assurances et garanties du constructeur (RC professionnelle, décennale, dommage ouvrage, garantie de remboursement de l'acompte, livraison à prix et délai convenu) : https://www.maisons-balency.fr/informations-legales/. HEXAOM Services est enregistré auprès de l'ORIAS en tant que Courtier en financement, Niveau 1, sous le numéro 14001345.

Contactez l'agence de Boos

02 35 80 66 66

    * Champs obligatoires

    Vos informations sont traitées par HEXAOM et transmises à un conseiller commercial qui vous contactera afin de répondre à votre demande. Les plans et images présentés sur notre site sont la propriété d’HEXAOM et ne peuvent pas être reproduits sans son accord. Pour retrouver notre politique de protection des données personnelles et exercer vos droits conformément à la « loi informatique et liberté » cliquez-ici.