Maison neuve à
Vigny
(95450) Référence :
AF2247144_1
Prix du projet : Maison avec Terrain
prix 305 000 €
- 5 pièces
- 3 chambres
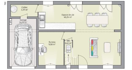
- Surface maison 90 m2
Maison T5 (90 m²) à vendre à Vigny
PROCHE D'ARGENTEUIL - MAISON 5 PIÈCES NEUVE
En vente : au pied de la gare d'Us (Paris à 45 min avec le Transilien J), nous sommes ravis de vous proposer cette maison de 5 pièces de 90 m² et de 330 m² de terrain à Vigny (95450).
Cette maison comporte 2 niveaux. Elle compte trois chambres, une cuisine et une salle de bains. La maison est neuve.
Il y a deux établissements scolaires à moins de 10 minutes à pied et dont le Collège Roland Vasseur. Niveau transports, on trouve la ligne de RER A (Cergy Le Haut) ainsi que 11 gares à moins de 10 minutes en voiture. On trouve une bibliothèque, une boulangerie, une épicerie, un bureau de poste et une boucherie-charcuterie dans les environs.
Elle est proposée à l'achat pour 305 000 €.
Prenez contact avec notre agence (Antoine FLIPPE : 07-82-59-37-75) pour toute information sur cette maison, sur les modalités de vente ou sur les démarches à suivre. Maisons Balency Pierrelaye est là pour vous accompagner dans tous vos projets immobiliers.
Annonce proposée par un Agent Commercial Partenaire.
Mentions légales
Terrain proposé par un partenaire foncier selon disponibilités et autorisation de publicité au prix de 128 000 €. Hors droit d'enregistrement et frais de notaire. Maison proposée, avec un contrat de construction de maison individuelle, dans le cadre de la loi du 19/12/1990, au prix de 177 000 € (Hors branchements et raccordements, papiers peints, peintures, revêtement de sol dans les chambres, qui sont chiffrés dans les travaux qui restent à charge du client. Tarif modifiable sans préavis). Étiquette énergie : A. Différents modèles disponibles pour ce terrain. Assurances et garanties du constructeur comprises (RC professionnelle, décennale, dommage ouvrage).Agence Maisons Balency de Baillet-en-France (95560)
- Téléphone :
- 01 34 46 05 23
- Adressse :
- 81 rue de Paris
95560 Baillet-en-France, France
