Maison neuve à
Vigny
(95450) Référence :
AF2247144_2
Prix du projet : Maison avec Terrain
prix 315 000 €
- 6 pièces
- 4 chambres
- Surface maison 105 m2
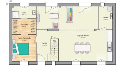
VENTE : maison F6 (105 m²) à Vigny
PROCHE D'ARGENTEUIL - MAISON 6 PIÈCES NEUVE
À quelques minutes de la gare d'Us (Paris à 45 min avec le Transilien J), votre agence Maisons Balency Pierrelaye est heureuse de vous proposer cette maison de 6 pièces de 105 m² à vendre à Vigny (95450).
Cette maison compte 2 niveaux. Son intérieur compte quatre chambres, une cuisine et deux salles de bains. La maison est neuve.
Le terrain du bien s'étend sur 330 m².
Il y a deux établissements scolaires à moins de 10 minutes à pied et, parmi lesquels le Collège Roland Vasseur. Niveau transports, on trouve la ligne de RER A (Cergy Le Haut) ainsi que 11 gares à moins de 10 minutes en voiture. Il y a une bibliothèque, une boulangerie, une épicerie, une boucherie-charcuterie et un bureau de poste à quelques minutes à peine.
Elle est proposée à l'achat pour 315 000 €.
N'hésitez pas à prendre contact avec notre constructeur (FLIPPE Antoine : 07-82-59-37-75) pour toute question sur cette maison ou sur les modalités de vente. Maisons Balency Pierrelaye vous accompagne à toutes les étapes de votre projet et dans tous vos projets immobiliers.
Annonce proposée par un Agent Commercial Partenaire.
Mentions légales
Terrain proposé par un partenaire foncier selon disponibilités et autorisation de publicité au prix de 128 000 €. Hors droit d'enregistrement et frais de notaire. Maison proposée, avec un contrat de construction de maison individuelle, dans le cadre de la loi du 19/12/1990, au prix de 187 000 € (Hors branchements et raccordements, papiers peints, peintures, revêtement de sol dans les chambres, qui sont chiffrés dans les travaux qui restent à charge du client. Tarif modifiable sans préavis). Étiquette énergie : A. Différents modèles disponibles pour ce terrain. Assurances et garanties du constructeur comprises (RC professionnelle, décennale, dommage ouvrage).Agence Maisons Balency de Baillet-en-France (95560)
- Téléphone :
- 01 34 46 05 23
- Adressse :
- 81 rue de Paris
95560 Baillet-en-France, France
