Maison neuve à
Villecerf
(77250) Référence :
PM2304758_1
Prix du projet : Maison avec Terrain
prix 381 000 €
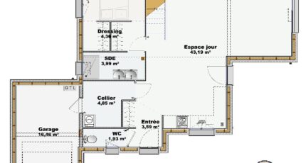
- 6 pièces
- 5 chambres
- Surface maison 114 m2
Villecerf (77250), à partir de 381 000 € :
Maison Haut de gamme en Bois de 120 m² à construire sur un beau terrain en lot AVANT de 535 m².
Devenez propriétaire d'une demeure d'exception en ossature bois, alliant écologie, performance et design contemporain !
Cette construction environnementale de 120 m² habitables, signée Les Maisons Balency d'Ormoy, dépasse les standards actuels pour vous proposer un confort durable et économique :
🌲 Isolation intérieure et extérieure renforcée (R = 6,56 m².C°/W)
❄️ Zéro pont thermique - confort été comme hiver
♻️ 2x plus isolant que le béton ou la brique
💧 80 % d'eau en moins utilisée pendant la conception
⚙️ Montage rapide : murs livrés et assemblés en 1 journée
🌍 Matériaux issus de forêts éco-gérées, bilan carbone positif
🇫🇷 Fabrication française - performances certifiées
Grâce à une conception optimisée et à une gestion énergétique intelligente, cette maison vous permettra de réduire durablement vos factures d'énergie tout en contribuant activement à la transition écologique.
Nos équipes vous assistent pour la recherche du terrain, les études personnalisées et les démarches administratives jusqu'à la remise des clés.
Appelez dès aujourd'hui les Maisons BALENCY Ormoy au 09 67 70 15 81 pour découvrir nos modèles et imaginer votre futur chez-vous, naturellement performant et élégant.
Annonce proposée par un Agent Commercial Partenaire.
Mentions légales
Terrain proposé par un partenaire foncier selon disponibilités et autorisation de publicité au prix de 68 000 €. Hors droit d'enregistrement et frais de notaire. Terrain + Maison proposés au prix de 313 000 € (Hors branchements et raccordements, papiers peints, peintures, revêtement de sol dans les chambres. Tarif modifiable sans préavis). Etiquette énergie : A. Différents modèles disponibles pour ce terrain. Assurances et garanties du constructeur (RC professionnelle, décennale, dommage ouvrage, garantie de remboursement de l'acompte, livraison à prix et délai convenu) : https://www.maisons-balency.fr/informations-legales/. HEXAOM Services est enregistré auprès de l'ORIAS en tant que Courtier en financement, Niveau 1, sous le numéro 14001345.Agence Maisons Balency de Ormoy (91540)
- Téléphone :
- 09 67 70 15 81
- Adressse :
- 23 chemin de Tournenfils - 1er étage
91540 Ormoy, France
