Maison neuve à
Villecerf
(77250) Référence :
PM2308444_1
Prix du projet : Maison avec Terrain
prix 215 000 €
- 6 pièces
- 4 chambres
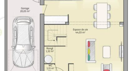
- Surface maison 91 m2
Villecerf, en Île de France (77250) : Belle Habitation de 91 m² avec étage, à bâtir à proximité d'une école ainsi que du RER R, sur un terrain VIABILISÉ de 459 m².
Découvrez ce spacieux modèle de maison réalisable au prix accessible de 215 000 € (terrain + maison, hors frais annexes), sur un terrain idéalement situé à Villecerf, en Île-de-France. Cette propriété sera localisée à proximité de la Gare RER R de Vernou-sur-Seine et à seulement 7 minutes à pied de l'école, offrant un cadre de vie paisible et pratique.
Villecerf vous séduira par ses commodités accessibles sur le site officiel de la commune : commerces de proximité, espaces verts et activités culturelles variées. La vie en lotissement assure un environnement convivial et sécurisé, parfait pour les familles.
Notre agence d'Ormoy des Maisons Balency vous propose des réalisations entièrement sur-mesure, conformes aux dernières normes RE2020. Nos conceptions sont élaborées avec soin, et nous pouvons également adapter des modèles de notre catalogue selon vos envies et besoins spécifiques.
Contactez-nous dès à présent au 06 49 43 56 27 pour lancer une recherche foncière gratuite et entamer votre projet de construction dans des conditions idéales.
Annonce proposée par un Agent Commercial Partenaire.
Mentions légales
Terrain proposé par un partenaire foncier selon disponibilités et autorisation de publicité au prix de 73 000 €. Hors droit d'enregistrement et frais de notaire. Maison proposée, avec un contrat de construction de maison individuelle, dans le cadre de la loi du 19/12/1990, au prix de 142 000 € (Hors branchements et raccordements, papiers peints, peintures, revêtement de sol dans les chambres, qui sont chiffrés dans les travaux qui restent à charge du client. Tarif modifiable sans préavis). Étiquette énergie : A. Différents modèles disponibles pour ce terrain. Assurances et garanties du constructeur comprises (RC professionnelle, décennale, dommage ouvrage).Agence Maisons Balency de Ormoy (91540)
- Téléphone :
- 09 67 70 15 81
- Adressse :
- 23 chemin de Tournenfils - 1er étage
91540 Ormoy, France
