Maison neuve à
Villejust
(91140) Référence :
PM2319387_4
Prix du projet : Maison avec Terrain
prix 519 000 €
- 6 pièces
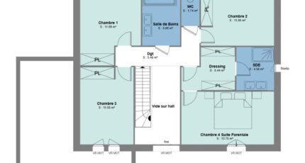
- 4 chambres
- Surface maison 136 m2
Villejust (91140), au coeur de l'Essonne : Construisez une Harmonieuse Demeure de 136 m² avec Les Maisons Balency d'Ormoy
À partir de 519 000 €, devenez propriétaire d'une maison comprenant 4 chambres et 2 salles de bains, à bâtir sur un vaste terrain de 890 m² idéalement situé à Villejust, dans l'Essonne. Ce projet, envisagé par Les Maisons Balency d'Ormoy, filiale du Groupe Hexaôm, 1er constructeur de maisons individuelles en France, vous offre la liberté de créer une maison totalement sur-mesure ou d'adapter l'un de nos modèles issus de nos catalogues, selon vos envies et votre mode de vie.
Nos constructions respectent les dernières normes RE2020, garantissant une performance énergétique optimale et un DPE de classe A ou B. Villejust bénéficie d'un cadre de vie recherché, à proximité immédiate de Palaiseau et Massy, accessibles en une quinzaine de minutes. Les gares RER B et C de Massy-Palaiseau permettent de rejoindre Paris en environ 30 minutes. Vous profiterez également des commodités locales : écoles, commerces de proximité, centre commercial Villebon 2, ainsi que du Parc Naturel de la Vallée de Chevreuse, situé à quelques minutes.
Notre équipe des Maisons Balency d'Ormoy vous accompagne de la recherche foncière jusqu'à la remise des clés, pour un projet maîtrisé et personnalisé.
Contactez-nous dès aujourd'hui au 09 67 70 15 81 pour donner vie à votre maison idéale à Villejust.
Annonce proposée par un Agent Commercial Partenaire.
Mentions légales
Terrain proposé par un partenaire foncier selon disponibilités et autorisation de publicité au prix de 249 000 €. Hors droit d'enregistrement et frais de notaire. Maison proposée, avec un contrat de construction de maison individuelle, dans le cadre de la loi du 19/12/1990, au prix de 270 000 € (Hors branchements et raccordements, papiers peints, peintures, revêtement de sol dans les chambres, qui sont chiffrés dans les travaux qui restent à charge du client. Tarif modifiable sans préavis). Étiquette énergie : A. Différents modèles disponibles pour ce terrain. Assurances et garanties du constructeur comprises (RC professionnelle, décennale, dommage ouvrage).Agence Maisons Balency de Ormoy (91540)
- Téléphone :
- 09 67 70 15 81
- Adressse :
- 23 chemin de Tournenfils - 1er étage
91540 Ormoy, France
