Maison neuve à
Villejust
(91140) Référence :
PM2319683_1
Prix du projet : Maison avec Terrain
prix 424 000 €
- 7 pièces
- 5 chambres
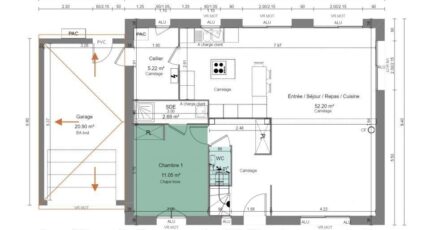
- Surface maison 142 m2
Villejust, au coeur de l'Essonne (91140) - Votre Future Maison Familiale de 142 m² à partir de 424 000 € !
Faites confiance aux Maisons Balency d'Ormoy pour vous bâtir, au sein d'un environnement calme et recherché de l'Essonne, une belle maison en R+1 de 5 chambres et de 3 salles-de-bains, sur un terrain de 404 m² en lot avant. Vous serez à proximité immédiate de Villebon-sur-Yvette et de Massy, accessibles en quelques minutes.
Profitez également de commerces et services présents dans les alentours : centre commercial Villebon 2, écoles, collège Jules Verne, ainsi que du complexe sportif et des espaces verts environnants. Les gares RER B de Palaiseau et de Massy permettent de rejoindre Paris en moins de 30 minutes.
Chez Maisons Balency d'Ormoy, constructeur du Groupe Hexaôm, 1er constructeur de maisons individuelles en France, nous concevons des habitations entièrement personnalisées selon vos envies ou à partir de nos modèles existants. Toutes nos réalisations respectent les dernières normes RE2020, garantissant une performance énergétique optimale avec un DPE A ou B.
Notre équipe vous accompagne à chaque étape de votre projet de la recherche du terrain à la livraison finale pour faire de votre maison un lieu unique, adapté à votre mode de vie.
Contactez l'agence des Maisons Balency d'Ormoy au 09 67 70 15 81 pour étudier ensemble votre projet de construction à Villejust et concrétiser votre future résidence dans un cadre idéal, alliant confort, modernité et proximité des grands axes franciliens.
Annonce proposée par un Agent Commercial Partenaire.
Mentions légales
Terrain proposé par un partenaire foncier selon disponibilités et autorisation de publicité au prix de 199 000 €. Hors droit d'enregistrement et frais de notaire. Maison proposée, avec un contrat de construction de maison individuelle, dans le cadre de la loi du 19/12/1990, au prix de 225 000 € (Hors branchements et raccordements, papiers peints, peintures, revêtement de sol dans les chambres, qui sont chiffrés dans les travaux qui restent à charge du client. Tarif modifiable sans préavis). Étiquette énergie : A. Différents modèles disponibles pour ce terrain. Assurances et garanties du constructeur comprises (RC professionnelle, décennale, dommage ouvrage).Agence Maisons Balency de Ormoy (91540)
- Téléphone :
- 09 67 70 15 81
- Adressse :
- 23 chemin de Tournenfils - 1er étage
91540 Ormoy, France
