Maison neuve à
Villejust
(91140) Référence :
RK2386955_2
Prix du projet : Maison avec Terrain
prix 335 800 €
- 6 pièces
- 5 chambres
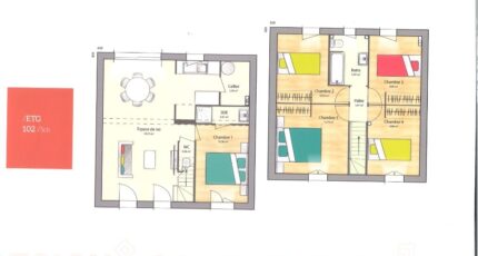
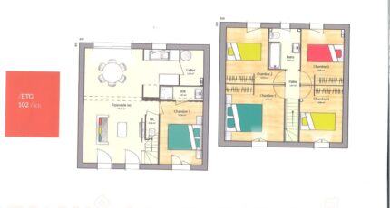
- Surface maison 102 m2
VENTE d'une maison F6 (102 m²) à Villejust
IDÉALEMENT SITUÉE - MAISON 6 PIÈCES NEUVE
À deux pas de la station Palaiseau-Villebon (Paris à 20 min avec le RER B), Maisons Balency La Ville-du-Bois vous présente cette maison de 6 pièces de 102 m² et de 250 m² de terrain à vendre idéalement située dans Villejust (91140).
Cette maison comporte 2 niveaux. Son intérieur offre cinq chambres, une cuisine et deux salles de bains. Cette maison est neuve.
Le bien se situe dans un quartier recherché. L'École Maternelle les Tilleuls et l'École Élémentaire Jeanne Chanson sont implantées à moins de 10 minutes à pied. Côté transports, on trouve deux lignes de RER (B et C) ainsi que 16 gares à moins de 10 minutes en voiture. Il y a deux boulangeries à proximité.
Il est à vendre pour la somme de 335 800 €.
N'hésitez pas à prendre contact avec Ramzi KRIFA (tél : 06-29-51-92-49) pour plus d'informations sur la maison ou sur les démarches à suivre.
Mentions légales
Terrain proposé par un partenaire foncier selon disponibilités et autorisation de publicité au prix de 154 000 €. Hors droit d'enregistrement et frais de notaire. Terrain + Maison proposés au prix de 181 800 € (Hors branchements et raccordements, papiers peints, peintures, revêtement de sol dans les chambres. Tarif modifiable sans préavis). Etiquette énergie : A. Différents modèles disponibles pour ce terrain. Assurances et garanties du constructeur (RC professionnelle, décennale, dommage ouvrage, garantie de remboursement de l'acompte, livraison à prix et délai convenu) : https://www.maisons-balency.fr/informations-legales/. HEXAOM Services est enregistré auprès de l'ORIAS en tant que Courtier en financement, Niveau 1, sous le numéro 14001345.Agence Maisons Balency de La Ville-du-Bois (91620)
- Téléphone :
- 01 64 49 21 13
- Adressse :
- Domexpo Sud - RN20
91620 La Ville-du-Bois, France
