Maison neuve à
Villejust
(91140) Référence :
KM2444036_2
Prix du projet : Maison avec Terrain
prix 519 000 €
- 6 pièces
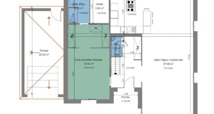
- 4 chambres
- Surface maison 150 m2
Superbe Trianon Familial Haut-de-Gamme de 150 m² à bâtir à Villejust (91140), sur un vaste terrain de 890 m², à partir de 519 000 €
À Villejust, charmante commune verdoyante de l'Essonne, profitez de l'opportunité de construire votre future maison de 150 m² sur un vaste terrain de 890 m². Située dans un cadre résidentiel recherché, cette parcelle offre un environnement paisible tout en restant proche des commodités : écoles, commerces de proximité et infrastructures sportives de Villejust accessibles en quelques minutes. Le centre commercial Villebon 2 se trouve à environ 10 minutes, tout comme la zone d'activités de Courtaboeuf.
À proximité, la gare RER B de Massy-Palaiseau permet de rejoindre Paris en une trentaine de minutes. Les villes de Palaiseau et Orsay sont accessibles en une dizaine de minutes, tandis qu'Évry et Versailles se situent à environ vingt minutes, offrant ainsi un confort de vie idéal entre nature et dynamisme urbain.
Avec Maisons Balency, marque du Groupe Hexaôm, premier constructeur de maisons individuelles en France, concevez une maison qui vous ressemble. Nous proposons des modèles personnalisables issus de notre catalogue ou une conception sur mesure, selon vos envies. Toutes nos réalisations respectent les exigences de la réglementation environnementale RE2020, garantissant un excellent niveau de performance énergétique (DPE A ou B).
Maisons BALENCY - Agence d'Ormoy
23 chemin de Tournenfils, 91540 ORMOY
09 67 70 15 81
Annonce proposée par un Agent Commercial Partenaire.
Mentions légales
Terrain proposé par un partenaire foncier selon disponibilités et autorisation de publicité au prix de 249 000 €. Hors droit d'enregistrement et frais de notaire. Terrain + Maison proposés au prix de 519 000 € (Hors branchements et raccordements, papiers peints, peintures, revêtement de sol dans les chambres. Tarif modifiable sans préavis). Etiquette énergie : A. Différents modèles disponibles pour ce terrain. Assurances et garanties du constructeur (RC professionnelle, décennale, dommage ouvrage, garantie de remboursement de l'acompte, livraison à prix et délai convenu) : https://www.maisons-balency.fr/informations-legales/. HEXAOM Services est enregistré auprès de l'ORIAS en tant que Courtier en financement, Niveau 1, sous le numéro 14001345.Agence Maisons Balency de Ormoy (91540)
- Téléphone :
- 09 67 70 15 81
- Adressse :
- 23 chemin de Tournenfils - 1er étage
91540 Ormoy, France
