Maison neuve à
Villeneuve-de-la-Raho
(66180) Référence :
MM2413375_1
Prix du projet : Maison avec Terrain
prix 915 000 €
- 5 pièces
- 4 chambres
- Surface maison 200 m2
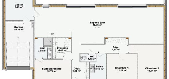
VENTE d'une maison de 200 m² à Villeneuve-de-la-Raho
Proche de Perpignan, à Villeneuve-de-la-Raho (66180) : maison neuve de 200 m² et 1 115 m² de terrain offrant une vue imprenable sur le Canigou au sein d'une zone golfique internationale. Elle compte quatre chambres dont une suite de 30m² et un epièce de vie de 100m².
À dix minutes : plages de Saint-Cyprien. Autoroute A9 et nationale N116 à 8 km. Mer Méditerranée à 14 km. Espagne à 18 km.
Le prix de vente de cette maison de 5 pièces est de 915 000 €.
Contactez Maryline MARIE (06-10-47-27-59) pour toute information sur les modalités de vente. Concrétisez vos projets immobiliers avec Maisons Balency Cabestany. Plans sur mesure.
Mentions légales
Terrain proposé par un partenaire foncier selon disponibilités et autorisation de publicité au prix de 415 000 €. Hors droit d'enregistrement et frais de notaire. Terrain + Maison proposés au prix de 915 000 € (Hors branchements et raccordements, papiers peints, peintures, revêtement de sol dans les chambres. Tarif modifiable sans préavis). Etiquette énergie : A. Différents modèles disponibles pour ce terrain. Assurances et garanties du constructeur (RC professionnelle, décennale, dommage ouvrage, garantie de remboursement de l'acompte, livraison à prix et délai convenu) : https://www.maisons-balency.fr/informations-legales/. HEXAOM Services est enregistré auprès de l'ORIAS en tant que Courtier en financement, Niveau 1, sous le numéro 14001345.Agence Maisons Balency de Cabestany (66330)
- Téléphone :
- 04 68 63 14 52
- Adressse :
- 1 chemin de Saint Gaudérique
66330 Cabestany, France
