Maison neuve à
Villiers-Adam
(95840) Référence :
AF2327855_2
Prix du projet : Maison avec Terrain
prix 370 000 €
- 5 pièces
- 3 chambres
- Surface maison 90 m2
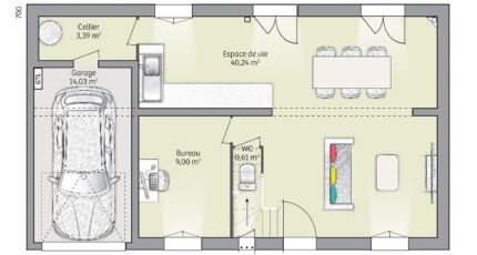
Villiers-Adam : maison de 5 pièces (90 m²) à vendre
MAISON 5 PIÈCES NEUVE - PROCHE DE PARIS
À vendre : à côté du Transilien H (gare de Mériel, 40 min de Paris), laissez vous charmer par cette maison de 5 pièces de 90 m² et de 630 m² de terrain à Villiers-Adam (95840).
Cette maison comporte 2 niveaux. Son intérieur se divise en trois chambres, une cuisine et une salle de bains. La maison est neuve.
L'École Primaire Publique Paul Cézanne se trouve à moins de 10 minutes à pied. Niveau transports en commun, il y a la ligne de RER C (Montigny-Beauchamp) ainsi que 33 gares à moins de 10 minutes en voiture. On trouve un tennis, une bibliothèque et un commerce à proximité du logement.
Son prix de vente est de 370 000 €.
N'hésitez pas à prendre contact avec notre agence (Antoine FLIPPE : 07-82-59-37-75) pour plus de renseignements sur la maison.
Annonce proposée par un Agent Commercial Partenaire.
Mentions légales
Terrain proposé par un partenaire foncier selon disponibilités et autorisation de publicité au prix de 170 000 €. Hors droit d'enregistrement et frais de notaire. Maison proposée, avec un contrat de construction de maison individuelle, dans le cadre de la loi du 19/12/1990, au prix de 200 000 € (Hors branchements et raccordements, papiers peints, peintures, revêtement de sol dans les chambres, qui sont chiffrés dans les travaux qui restent à charge du client. Tarif modifiable sans préavis). Étiquette énergie : A. Différents modèles disponibles pour ce terrain. Assurances et garanties du constructeur comprises (RC professionnelle, décennale, dommage ouvrage).Agence Maisons Balency de Baillet-en-France (95560)
- Téléphone :
- 01 34 46 05 23
- Adressse :
- 81 rue de Paris
95560 Baillet-en-France, France
