Maison neuve à
Villiers-Adam
(95840) Référence :
WB2457044_3
Prix du projet : Maison avec Terrain
prix 445 000 €
- 6 pièces
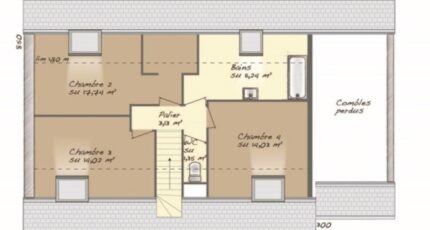
- 4 chambres
- Surface maison 117 m2
VENTE : maison T6 (117 m²) à Villiers-Adam
PROCHE DE PARIS - MAISON 6 PIÈCES NEUVE
À proximité de la gare de Mériel (Paris à 40 min par le Transilien H), Maisons Balency Baillet-en-France vous propose en vente à Villiers-Adam (95840), cette maison de 6 pièces de plain-pied de 117 m².
Conçue de plain-pied, elle inclut quatre chambres, une cuisine et deux salles de bains. La maison est neuve.
Le terrain du bien s'étend sur 691 m².
Il y a l'École Primaire Publique Paul Cézanne à moins de 10 minutes à pied. Côté transports, on trouve la ligne de RER C (Montigny-Beauchamp) ainsi que 33 gares à moins de 10 minutes en voiture. Il y a un tennis, une bibliothèque et un commerce à quelques minutes du logement.
Elle est à vendre pour la somme de 445 000 €.
Prenez contact avec notre agence (William BIDAN : 06-22-45-69-29) pour toute information sur cette maison. Concrétisez vos projets immobiliers avec Maisons Balency Baillet-en-France.
Annonce proposée par un Agent Commercial Partenaire.
Mentions légales
Terrain proposé par un partenaire foncier selon disponibilités et autorisation de publicité au prix de 175 000 €. Hors droit d'enregistrement et frais de notaire. Terrain + Maison proposés au prix de 445 000 € (Hors branchements et raccordements, papiers peints, peintures, revêtement de sol dans les chambres. Tarif modifiable sans préavis). Etiquette énergie : A. Différents modèles disponibles pour ce terrain. Assurances et garanties du constructeur (RC professionnelle, décennale, dommage ouvrage, garantie de remboursement de l'acompte, livraison à prix et délai convenu) : https://www.maisons-balency.fr/informations-legales/. HEXAOM Services est enregistré auprès de l'ORIAS en tant que Courtier en financement, Niveau 1, sous le numéro 14001345.Agence Maisons Balency de Baillet-en-France (95560)
- Téléphone :
- 01 34 46 05 23
- Adressse :
- 81 rue de Paris
95560 Baillet-en-France, France
