Maison neuve à
Villiers-Adam
(95840) Référence :
WB2457044_4
Prix du projet : Maison avec Terrain
prix 525 000 €
- 8 pièces
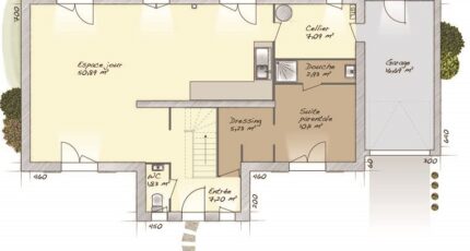
- 5 chambres
- Surface maison 145 m2
Villiers-Adam : maison F8 (145 m²) en vente
MAISON 8 PIÈCES NEUVE - PROCHE DE PARIS
À vendre : à deux pas du Transilien H (gare de Mériel, 40 min de Paris), ayez le coup de coeur pour à Villiers-Adam (95840), cette maison de 8 pièces de 145 m² et de 691 m² de terrain. Son intérieur offre cinq chambres, une cuisine et trois salles de bains.
Cette maison comporte 2 niveaux. Elle est neuve.
L'École Primaire Publique Paul Cézanne est implantée à moins de 10 minutes à pied. Côté transports, il y a la ligne de RER C (Montigny-Beauchamp) ainsi que 33 gares à moins de 10 minutes en voiture. On trouve un tennis, une bibliothèque et un commerce à proximité.
Son prix de vente est de 525 000 €.
Prenez contact avec notre agence (William BIDAN : 06-22-45-69-29) pour tout renseignement sur la maison ou sur les démarches à suivre. Maisons Balency Baillet-en-France vous accompagne à toutes les étapes de votre projet et dans tous vos projets immobiliers.
Annonce proposée par un Agent Commercial Partenaire.
Mentions légales
Terrain proposé par un partenaire foncier selon disponibilités et autorisation de publicité au prix de 175 000 €. Hors droit d'enregistrement et frais de notaire. Terrain + Maison proposés au prix de 525 000 € (Hors branchements et raccordements, papiers peints, peintures, revêtement de sol dans les chambres. Tarif modifiable sans préavis). Etiquette énergie : A. Différents modèles disponibles pour ce terrain. Assurances et garanties du constructeur (RC professionnelle, décennale, dommage ouvrage, garantie de remboursement de l'acompte, livraison à prix et délai convenu) : https://www.maisons-balency.fr/informations-legales/. HEXAOM Services est enregistré auprès de l'ORIAS en tant que Courtier en financement, Niveau 1, sous le numéro 14001345.Agence Maisons Balency de Baillet-en-France (95560)
- Téléphone :
- 01 34 46 05 23
- Adressse :
- 81 rue de Paris
95560 Baillet-en-France, France
