Maison neuve à
Vitot (27110) Référence : SEMA9030_3

Prix du projet : Maison avec Terrain

prix 215 000 €

  • 5 pièces
  • 3 chambres
  • Surface maison 76 m2

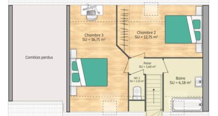
Maison de 5 pièces (76 m²) à vendre à Vitot
PROCHE D'ÉVREUX - MAISON 5 PIÈCES NEUVE
À vendre : à 25 km d'Évreux, Maisons Balency Boos vous présente cette maison de 5 pièces de 76 m² à Vitot (27110). Elle inclut trois chambres, une cuisine et une salle de bains.
Le terrain de la maison s'étend sur 600 m².
C'est une maison de 2 niveaux. Elle est neuve.
Une école maternelle est implantée dans le quartier. Les autoroutes A28 et A154 et les nationales N13 et N154 sont accessibles à moins de 20 km.
Son prix de vente est de 215 000 €.
N'hésitez pas à prendre contact avec notre agence (Sébastien MASSON : 06-23-38-14-17) pour plus de renseignements sur cette maison ou sur les démarches à suivre. Donnez vie à vos projets immobiliers avec Maisons Balency Boos.

Annonce proposée par un Agent Commercial Partenaire.

Mentions légales

Terrain proposé par un partenaire foncier selon disponibilités et autorisation de publicité au prix de 65 000 €. Hors droit d'enregistrement et frais de notaire. Maison proposée, avec un contrat de construction de maison individuelle, dans le cadre de la loi du 19/12/1990, au prix de 150 000 € (Hors branchements et raccordements, papiers peints, peintures, revêtement de sol dans les chambres, qui sont chiffrés dans les travaux qui restent à charge du client. Tarif modifiable sans préavis). Étiquette énergie : A. Différents modèles disponibles pour ce terrain. Assurances et garanties du constructeur comprises (RC professionnelle, décennale, dommage ouvrage).

Contactez l'agence de Boos

02 35 80 66 66

    * Champs obligatoires

    Vos informations sont traitées par HEXAOM et transmises à un conseiller commercial qui vous contactera afin de répondre à votre demande. Les plans et images présentés sur notre site sont la propriété d’HEXAOM et ne peuvent pas être reproduits sans son accord. Pour retrouver notre politique de protection des données personnelles et exercer vos droits conformément à la « loi informatique et liberté » cliquez-ici.