Maison neuve à
Vitot (27110) Référence : SEMA9030_7

Prix du projet : Maison avec Terrain

prix 259 000 €

  • 9 pièces
  • 5 chambres
  • Surface maison 124 m2

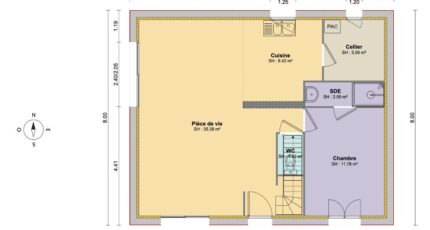
VENTE d'une maison de 9 pièces (124 m²) à Vitot
MAISON 9 PIÈCES NEUVE - PROCHE D'ÉVREUX
À quelques kilomètres d'Évreux, Maisons Balency Boos vous présente en vente à Vitot (27110), cette maison de 9 pièces de 124 m².
Cette maison possède 2 niveaux. Son intérieur comporte cinq chambres, une cuisine et trois salles de bains. La maison est neuve.
Le terrain du bien est de 600 m².
Il y a une école maternelle dans le quartier. Les autoroutes A28 et A154 et les nationales N13 et N154 sont accessibles à moins de 20 km.
Elle est proposée à l'achat pour 259 000 €.
Contactez Sébastien MASSON (06-23-38-14-17) pour tout renseignement sur cette maison, sur les modalités de vente ou sur les démarches à suivre. Maisons Balency Boos est là pour vous accompagner à toutes les étapes de votre projet.

Annonce proposée par un Agent Commercial Partenaire.

Mentions légales

Terrain proposé par un partenaire foncier selon disponibilités et autorisation de publicité au prix de 65 000 €. Hors droit d'enregistrement et frais de notaire. Maison proposée, avec un contrat de construction de maison individuelle, dans le cadre de la loi du 19/12/1990, au prix de 194 000 € (Hors branchements et raccordements, papiers peints, peintures, revêtement de sol dans les chambres, qui sont chiffrés dans les travaux qui restent à charge du client. Tarif modifiable sans préavis). Étiquette énergie : A. Différents modèles disponibles pour ce terrain. Assurances et garanties du constructeur comprises (RC professionnelle, décennale, dommage ouvrage).

Contactez l'agence de Boos

02 35 80 66 66

    * Champs obligatoires

    Vos informations sont traitées par HEXAOM et transmises à un conseiller commercial qui vous contactera afin de répondre à votre demande. Les plans et images présentés sur notre site sont la propriété d’HEXAOM et ne peuvent pas être reproduits sans son accord. Pour retrouver notre politique de protection des données personnelles et exercer vos droits conformément à la « loi informatique et liberté » cliquez-ici.