Maison neuve à
Vitot (27110) Référence : SEMA9030_9

Prix du projet : Maison avec Terrain

prix 339 000 €

  • 5 pièces
  • 3 chambres
  • Surface maison 120 m2

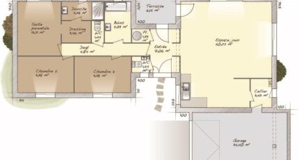
Maison F5 (120 m²) à vendre à Vitot
MAISON 5 PIÈCES NEUVE - PROCHE D'ÉVREUX
En vente : à deux pas d'Évreux, à Vitot (27110), découvrez cette maison de 5 pièces de plain-pied de 120 m² et de 600 m² de terrain.
Son intérieur dispose de trois chambres, d'une cuisine et de deux salles de bains. La maison est neuve.
Une école maternelle est implantée dans le quartier. Les autoroutes A28 et A154 et les nationales N13 et N154 sont accessibles à moins de 20 km.
Elle est à vendre pour la somme de 339 000 €.
Contactez Sébastien MASSON (tél : 06-23-38-14-17) pour toute question sur cette maison ou sur les modalités de vente.

Annonce proposée par un Agent Commercial Partenaire.

Mentions légales

Terrain proposé par un partenaire foncier selon disponibilités et autorisation de publicité au prix de 65 000 €. Hors droit d'enregistrement et frais de notaire. Maison proposée, avec un contrat de construction de maison individuelle, dans le cadre de la loi du 19/12/1990, au prix de 274 000 € (Hors branchements et raccordements, papiers peints, peintures, revêtement de sol dans les chambres, qui sont chiffrés dans les travaux qui restent à charge du client. Tarif modifiable sans préavis). Étiquette énergie : A. Différents modèles disponibles pour ce terrain. Assurances et garanties du constructeur comprises (RC professionnelle, décennale, dommage ouvrage).

Contactez l'agence de Boos

02 35 80 66 66

    * Champs obligatoires

    Vos informations sont traitées par HEXAOM et transmises à un conseiller commercial qui vous contactera afin de répondre à votre demande. Les plans et images présentés sur notre site sont la propriété d’HEXAOM et ne peuvent pas être reproduits sans son accord. Pour retrouver notre politique de protection des données personnelles et exercer vos droits conformément à la « loi informatique et liberté » cliquez-ici.