Maison neuve à
Vitry-sur-Seine
(94400) Référence :
AM2319344_1
Prix du projet : Maison avec Terrain
prix 600 000 €
- 5 pièces
- 3 chambres
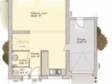
- Surface maison 90 m2
Vitry-sur-Seine : maison de 5 pièces (90 m²) à vendre
MAISON 5 PIÈCES NEUVE
Au pied du RER C (5 min de Paris), notre agence Maisons Balency Saint-Maur-des-Fossés est ravie de vous proposer cette maison de 5 pièces de 90 m² à Vitry-sur-Seine (94400). Elle offre trois chambres, une cuisine et une salle de bains.
Le terrain de la maison est de 488 m².
Cette maison possède 2 niveaux. Elle est neuve.
Des écoles du primaire et du secondaire sont implantées à moins de 10 minutes à pied, tout comme une crèche. Niveau transports en commun, il y a cinq lignes de RER ainsi que 34 gares à moins de 10 minutes en voiture. On trouve un bassin de natation, une bibliothèque, un tennis, des boulangeries, des commerces, deux supermarchés, une supérette et deux bureaux de poste à proximité. 2 marchés animent le quartier.
Elle est à vendre pour la somme de 600 000 €.
N'hésitez pas à prendre contact avec Aurelien MONTANIER (tél : 06-24-66-88-34) pour toute information sur cette propriété ou sur les modalités de vente. Maisons Balency Saint-Maur-des-Fossés vous accompagne dans tous vos projets immobiliers et à toutes les étapes de votre projet.
Annonce proposée par un Agent Commercial Partenaire.
Mentions légales
Terrain proposé par un partenaire foncier selon disponibilités et autorisation de publicité au prix de 370 000 €. Hors droit d'enregistrement et frais de notaire. Maison proposée, avec un contrat de construction de maison individuelle, dans le cadre de la loi du 19/12/1990, au prix de 230 000 € (Hors branchements et raccordements, papiers peints, peintures, revêtement de sol dans les chambres, qui sont chiffrés dans les travaux qui restent à charge du client. Tarif modifiable sans préavis). Étiquette énergie : A. Différents modèles disponibles pour ce terrain. Assurances et garanties du constructeur comprises (RC professionnelle, décennale, dommage ouvrage).Agence Maisons Balency de Saint-Maur-des-Fossés (94100)
- Téléphone :
- 01 87 36 85 37
- Adressse :
- 12 avenue de la république
94100 Saint-Maur-des-Fossés, France
