Maison neuve à
Vulaines-sur-Seine
(77870) Référence :
KM2285884_2
Prix du projet : Maison avec Terrain
prix 409 000 €
- 6 pièces
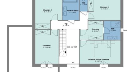
- 4 chambres
- Surface maison 136 m2
Vulaines-sur-Seine (77870) : Élégante Demeure de 136 m² à bâtir par Les Maisons Balency d'Ormoy sur un terrain VIABILISÉ de 378 m².
Nous vous proposons une maison de 4 chambres et de 2 salles-de-bains, sur deux niveaux, à bâtir sur une parcelle au sein d'un lotissement sécurisé, à 13 minutes de FONTAINEBLEAU.
Des écoles maternelles et élémentaires sont implantées à moins de 10 minutes à pied du terrain, toit comme l'École Élémentaire les Orangers.
Niveau transports en commun, on trouve la gare RER R de Vulaines-sur-Seine à quelques pas de la maison. On trouve une bibliothèque, une boulangerie, des commerces, deux épiceries et une boucherie-charcuterie à quelques minutes de la maison.
Le projet (terrain viabilisé + maison hors frais annexes), est estimé à 409 000 €.
Contactez nous au 06-49-43-56-27 pour tout renseignement sur la maison et sur ses modalités de construction.
Annonce proposée par un Agent Commercial Partenaire.
Mentions légales
Terrain proposé par un partenaire foncier selon disponibilités et autorisation de publicité au prix de 139 000 €. Hors droit d'enregistrement et frais de notaire. Maison proposée, avec un contrat de construction de maison individuelle, dans le cadre de la loi du 19/12/1990, au prix de 270 000 € (Hors branchements et raccordements, papiers peints, peintures, revêtement de sol dans les chambres, qui sont chiffrés dans les travaux qui restent à charge du client. Tarif modifiable sans préavis). Étiquette énergie : A. Différents modèles disponibles pour ce terrain. Assurances et garanties du constructeur comprises (RC professionnelle, décennale, dommage ouvrage).Agence Maisons Balency de Ormoy (91540)
- Téléphone :
- 09 67 70 15 81
- Adressse :
- 23 chemin de Tournenfils - 1er étage
91540 Ormoy, France
