Maison neuve à
Vulaines-sur-Seine
(77870) Référence :
KM2285884_3
Prix du projet : Maison avec Terrain
prix 284 000 €
- 5 pièces
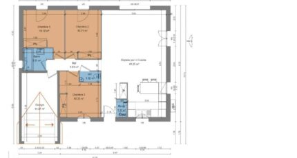
- 3 chambres
- Surface maison 82 m2
Vulaines-sur-Seine (77870) à deux pas de FONTAINEBLEAU :
Plain-pied Traditionnel de 82 m² à bâtir par Les Maisons Balency d'Ormoy sur un terrain VIABILISÉ de 378 m².
Devenez propriétaire d'une jolie maison de 3 chambres à bâtir sur une parcelle au sein d'un lotissement sécurisé, à seulement 13 minutes de FONTAINEBLEAU.
Le modèle est personnalisable selon vos goûts et votre budget.
Des groupes scolaires sont implantés à moins de 10 minutes à pied du terrain ; niveau transports en commun, on trouve également la gare RER R de Vulaines-sur-Seine. On trouve une bibliothèque, une boulangerie, des commerces, deux épiceries et une boucherie-charcuterie à quelques minutes de la maison.
Le projet (terrain viabilisé + maison hors frais annexes), est estimé à 284 000 €.
Contactez nous au 06-49-43-56-27 pour tout renseignement sur la maison et sur ses modalités de construction.
Annonce proposée par un Agent Commercial Partenaire.
Mentions légales
Terrain proposé par un partenaire foncier selon disponibilités et autorisation de publicité au prix de 139 000 €. Hors droit d'enregistrement et frais de notaire. Maison proposée, avec un contrat de construction de maison individuelle, dans le cadre de la loi du 19/12/1990, au prix de 145 000 € (Hors branchements et raccordements, papiers peints, peintures, revêtement de sol dans les chambres, qui sont chiffrés dans les travaux qui restent à charge du client. Tarif modifiable sans préavis). Étiquette énergie : A. Différents modèles disponibles pour ce terrain. Assurances et garanties du constructeur comprises (RC professionnelle, décennale, dommage ouvrage).Agence Maisons Balency de Ormoy (91540)
- Téléphone :
- 09 67 70 15 81
- Adressse :
- 23 chemin de Tournenfils - 1er étage
91540 Ormoy, France
