Maison neuve à
Warluis
(60430) Référence :
CT2352931_1
Prix du projet : Maison avec Terrain
prix 276 375 €
- 4 pièces
- 3 chambres
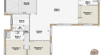
- Surface maison 94 m2
Warluis : maison T4 (94 m²) en vente
IDÉALEMENT SITUÉE - MAISON 4 PIÈCES NEUVE
En vente à deux pas de Beauvais, laissez vous charmer par cette maison de 4 pièces de 94 m² et de 708 m² de terrain avec vue sur espace vert idéalement située dans Warluis (60430). Son intérieur offre trois chambres, une cuisine et deux salles de bains.
Cette maison est de plain-pied. Elle est neuve.
Cette maison se trouve dans un secteur convoité. On y trouve une école primaire. Niveau transports en commun, il y a six gares à moins de 10 minutes en voiture. L'autoroute A16 et la nationale N31 sont accessibles à moins de 4 km. On trouve un tennis, une boulangerie et un commerce à proximité du logement.
Elle est proposée à l'achat pour 276 375 €.
Contactez Christophe TALAMONI (tél : 06-49-55-08-27) pour toute information sur la maison ou sur les modalités de vente. Maisons Balency Baillet-en-France vous accompagne à toutes les étapes de l'achat et dans tous vos projets immobiliers.
Annonce proposée par un Agent Commercial Partenaire.
Mentions légales
Terrain proposé par un partenaire foncier selon disponibilités et autorisation de publicité au prix de 85 000 €. Hors droit d'enregistrement et frais de notaire. Terrain + Maison proposés au prix de 276 375 € (Hors branchements et raccordements, papiers peints, peintures, revêtement de sol dans les chambres. Tarif modifiable sans préavis). Etiquette énergie : A. Différents modèles disponibles pour ce terrain. Assurances et garanties du constructeur (RC professionnelle, décennale, dommage ouvrage, garantie de remboursement de l'acompte, livraison à prix et délai convenu) : https://www.maisons-balency.fr/informations-legales/. HEXAOM Services est enregistré auprès de l'ORIAS en tant que Courtier en financement, Niveau 1, sous le numéro 14001345.Agence Maisons Balency de Baillet-en-France (95560)
- Téléphone :
- 01 34 46 05 23
- Adressse :
- 81 rue de Paris
95560 Baillet-en-France, France
